エクレール千駄ヶ谷物件ID:41015




- 駅近
- 個別空調
賃貸条件
- 階数
- 502号室
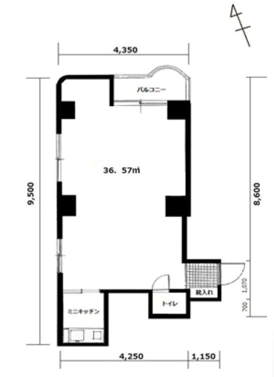
- 面積
- 11.06坪(36.56㎡)
- 賃料
- 144,500円
- 礼金
- -
- 管理費
- 11,050円
- 預託金
- 3ヵ月
- 償却費
- ー
- 更新料
- ー
- 契約期間
- 相談
- 入居日
- 相談
- 備考
- 指定借家人賠償保険加入必須
- その他
- 国立競技場・東京体育館 至近
部屋から新宿御苑が眺められます
エアコン
IHミニキッチン
防犯カメラ
エレベーターリニューアル実施済み
※現況優先
※賃料等は税別表示です。
物件情報
- 物件名
- エクレール千駄ヶ谷
- 住所
- 東京都渋谷区千駄ヶ谷1-31-11
- 竣工
- 1979年2月
- 建物規模
- 鉄骨鉄筋コンクリート造 地上 7階建
- 主要設備
- トイレ ミニキッチン バルコニー 個別空調 防犯カメラ 駅近
- 特徴
- エクレール千駄ヶ谷(千駄ヶ谷1丁目)は地上7階・総戸数16戸 の小規模ヴィンテージ分譲マンションです。
国立競技場駅徒歩2分、千駄ヶ谷駅徒歩3分と複数路線の利用が可能です。
近隣には新宿御苑や明治神宮外苑が徒歩圏内にあり、四季折々の自然を満喫できる静かな住環境となっております。
また設備面におきましても防犯カメラ、TVモニター付インターホン、24時間ゴミ出し可、宅配ボックス完備等充実しております。
物件を見学したい、空室情報など
物件のお問い合わせ
物件のお問い合わせ
0120-486-656 受付時間|平日10:00~19:00
物件ID【41015】をお伝えください
お問い合わせから10分で返信いたしますこの物件を問い合わせる 交通アクセス
- ・ 千駄ケ谷 駅 徒歩3分
5秒で簡単資料請求