(仮称)新宿東栄ビル物件ID:38117




- 築浅
- 駅近
- 天井高2,500mm以上
- OAフロア
- 新耐震基準
- 男女別トイレ
賃貸条件
- 階数
- 2階
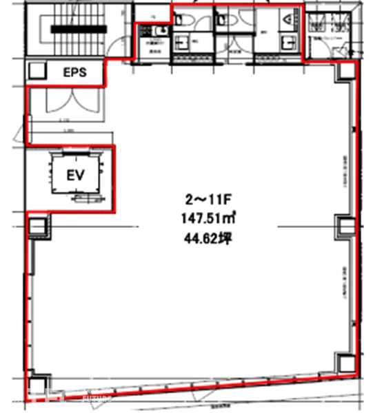
- 面積
- 44.62坪(147.5㎡)
- 賃料
- 1,160,120円
- 礼金
- -
- 管理費
- 133,880円
- 預託金
- 10ヵ月
- 償却費
- 1.1ヶ月分
- 更新料
- 新賃料の1.1ヶ月分
- 契約期間
- 定借 3年 再契約相談可
- 入居日
- 2025年10月下旬予定
- 備考
- 解約予告6ヶ月前
借家人賠償特約付火災保険加入必須
指定保証会社利用必須
水回り清掃は別途オプションです
タイルカーペットの敷設は借主側となります - その他
- 靖国通りに面したミッドサイズオフィスが新宿三丁目に誕生!!
複数路線が乗り入れている新宿三丁目駅から徒歩1分
他複数路線利用可
都庁や新宿区役所など行政施設至近
1階入居予定業種:コンビニエンスストア
※賃料等は税別表示です。
物件情報
- 物件名
- (仮称)新宿東栄ビル
- 住所
- 東京都新宿区新宿3-12
- 竣工
- 2025年10月
- 建物規模
- 鉄骨造 陸屋根 地上12階建
- 主要設備
- 駅近 新耐震 エレベーター 男女別トイレ 給湯
- 特徴
- "「(仮称)新宿東栄ビル」は、東京都新宿区新宿3丁目に位置する新築のオフィスビルで、2025年10月の竣工を予定しています。
新宿駅東口から徒歩圏内の好立地にあり、JR山手線、中央線、総武線、東京メトロ丸ノ内線・副都心線・都営新宿線など、多数の路線が利用可能です。周辺には新宿三丁目エリアの商業施設や飲食店も豊富で、利便性が高いです。
耐震性にも配慮されています。外観はシンプルでありながらも、周囲の街並みに溶け込むデザインが施されています。
新宿駅からのアクセスの良さと、周辺の商業施設や飲食店の充実度から、企業の本社や支社、クリエイティブ系のオフィスなど、多様な業種に適した物件です。また、周辺エリアは新宿区東口地区計画の第一号として、街並みの整備が進められており、今後の発展が期待されます。
「(仮称)新宿東栄ビル」は、都心の利便性と新たな街づくりの中核として、企業の拠点にふさわしい立地と環境を提供します。
物件を見学したい、空室情報など
物件のお問い合わせ
物件のお問い合わせ
0120-486-656 受付時間|平日10:00~19:00
物件ID【38117】をお伝えください
お問い合わせから10分で返信いたしますこの物件を問い合わせる 交通アクセス
- ・ 新宿三丁目駅 徒歩1分
- ・ 新宿駅 徒歩6分
- ・ 東新宿駅 徒歩11分
(仮称)新宿東栄ビル 募集中の区画
階数 | 坪数 | 賃料 | 管理費 | 坪単価 | 預託金 | 入居日 |
---|---|---|---|---|---|---|
3階 | 44.62坪 | 1,160,120円 | 133,880円 | 29,000円 | 10ヵ月 | 2025年10月下旬予定 |
5階 | 44.62坪 | 1,160,120円 | 133,880円 | 29,000円 | 10ヵ月 | 2025年10月下旬予定 |
4階 | 44.62坪 | 1,160,120円 | 133,880円 | 29,000円 | 10ヵ月 | 2025年10月下旬予定 |
6階 | 44.62坪 | 1,160,120円 | 133,880円 | 29,000円 | 10ヵ月 | 2025年10月下旬予定 |
7階 | 44.62坪 | 1,160,120円 | 133,880円 | 29,000円 | 10ヵ月 | 2025年10月下旬予定 |
8階 | 44.62坪 | 1,160,120円 | 133,880円 | 29,000円 | 10ヵ月 | 2025年10月下旬予定 |
9階 | 44.62坪 | 1,160,120円 | 133,880円 | 29,000円 | 10ヵ月 | 2025年10月下旬予定 |
10階 | 44.62坪 | 1,204,740円 | 133,880円 | 30,000円 | 10ヵ月 | 2025年10月下旬予定 |
11階 | 44.62坪 | 1,204,740円 | 133,880円 | 30,000円 | 10ヵ月 | 2025年10月下旬予定 |
12階 | 35.76坪 | 965,520円 | 107,280円 | 30,000円 | 10ヵ月 | 2025年10月下旬予定 |
5秒で簡単資料請求