シンクス麹町物件ID:33672

  • 築浅
  • 駅近
  • 貸会議室併設
  • 新耐震基準
  • 個別空調
  • 天井高2,500mm以上

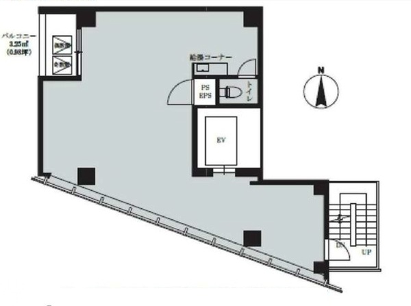
賃貸条件

階数
12階
面積
17.05坪(56.36㎡)
賃料
511,500円
礼金
-
管理費
-
預託金
5ヵ月
償却費
ー 
更新料
新賃料の1ヶ月分 
契約期間
普通借 2年 
入居日
即日 
備考
火災保険要加入
保証会社要加入
水廻りを増改築する場合は別途預託金あり
産業廃棄物処理費:4000円
看板使用料:5000円
内装管理費:坪15000円(水廻りを増改築する場合のみ)
店舗の場合:敷金10ヶ月
その他
新宿通りに面し視認性良好
全面ガラス張りのカーテンウォールにより、
自然光がたっぷり差し込む明るく開放的な空間で
水廻り・空調設備を完備したスケルトン内装

※賃料等は税別表示です。

物件情報

物件名
シンクス麹町
住所
東京都千代田区麹町4-2-11
竣工
2024年3月
建物規模
鉄骨造 地上 13階建 
主要設備
エレベーター 駅近 新耐震 天井高2.5M以上 
特徴
物件を見学したい、空室情報など
物件のお問い合わせ
0120-486-656 受付時間|平日10:00~19:00
物件ID【33672】をお伝えください
お問い合わせから10分で返信いたしますこの物件を問い合わせる

交通アクセス

  • ・ 麹町駅 徒歩2分
  • ・ 四ツ谷駅 徒歩8分
シンクス麹町 募集中の区画
階数 坪数 賃料 管理費 坪単価 預託金 入居日
7階 17.16坪 480,480円 - 28,000円 5ヵ月 即日 
8階 17.16坪 480,480円 - 28,000円 - 即日 
9階 17.16坪 480,480円 - 28,000円 5ヵ月 即日 
10階 17.05坪 511,500円 - 30,000円 - 即日 
11階 17.05坪 511,500円 - 30,000円 - 即日 
5秒で簡単資料請求
お名前
Email
TEL
WEB非公開物件がございます
新宿区を中心に15年以上、たくさんのオーナー様の信頼を勝ち得てきたTFCだからこそ
ご紹介できる"非公開物件"がございます!!
お客様一人ひとりに合ったこだわり条件に誠心誠意お応えいたします。
"新宿オフィス"の賃貸情報なら、なんでもお任せください!!
ご来店も大歓迎です
安心してお任せいただけるよう、ご来店をおすすめしております。
お客様のご要望を対面にて、是非!お聞かせください!!
現事務所の解約スケジュールや移転時期、内装工事、各種手続きのタイミング、引渡しまで全てTFCがご提案いたします。
新宿エリアの賃貸不動産は、TFCのエキスパートに是非お任せください!!

近くのエリアで探してみる

エリア
新宿エリア 四谷・四谷三丁目
最寄り駅
麹町  / 四ツ谷

シンクス麹町と同等の坪数の物件

シンクス麹町と同等の賃料の物件

LINEで最新情報を配信中
気軽に相談可能です