恵南ビル物件ID:30872

  • 駅近
  • 新耐震基準

賃貸条件

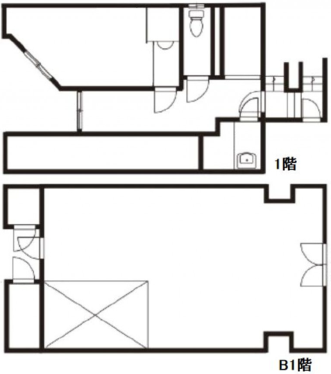
階数
B1・1階
面積
11坪(36.36㎡)
賃料
400,000円
礼金
2ヵ月
管理費
-
預託金
8ヵ月
償却費
2ヶ月分 
更新料
新賃料の1ヶ月分 
契約期間
定借 2年 再契約相談可
入居日
即日 
備考
短期解約違約金有り:2年未満/賃料1ヶ月分相当
クリーニング費用借主負担
その他
1階7.22㎡と地下1階20.04㎡の一括貸しです
地下1階はエントランスオートロック内の階段下となります
1フロア1テナント
土日・祝利用可能
オートロック
防犯カメラ
インターネット対応
飲食店不可

※賃料等は税別表示です。

物件情報

物件名
恵南ビル
住所
東京都新宿区西新宿8-14-18
竣工
1992年7月
建物規模
鉄筋コンクリート造 地上 7階建 地下 1階 
主要設備
エアコン 駅近 エレベーター 24時間利用可 個別空調 給湯 
特徴
新宿区西新宿8丁目にございます恵南ビルのご紹介です。
東京メトロ丸の内線「西新宿」徒歩2分の好立地にございます物件です。
青梅街道沿いに立地しており、交通利便性も良好です。
近隣には多くの飲食店等が立ち並び、充実のランチタイムをお過ごしいただけます。
物件を見学したい、空室情報など
物件のお問い合わせ
0120-486-656 受付時間|平日10:00~19:00
物件ID【30872】をお伝えください
お問い合わせから10分で返信いたしますこの物件を問い合わせる

交通アクセス

  • ・ 西新宿駅 徒歩2分
5秒で簡単資料請求
お名前
Email
TEL
WEB非公開物件がございます
新宿区を中心に15年以上、たくさんのオーナー様の信頼を勝ち得てきたTFCだからこそ
ご紹介できる"非公開物件"がございます!!
お客様一人ひとりに合ったこだわり条件に誠心誠意お応えいたします。
"新宿オフィス"の賃貸情報なら、なんでもお任せください!!
ご来店も大歓迎です
安心してお任せいただけるよう、ご来店をおすすめしております。
お客様のご要望を対面にて、是非!お聞かせください!!
現事務所の解約スケジュールや移転時期、内装工事、各種手続きのタイミング、引渡しまで全てTFCがご提案いたします。
新宿エリアの賃貸不動産は、TFCのエキスパートに是非お任せください!!

近くのエリアで探してみる

エリア
新宿エリア 西新宿
最寄り駅
西新宿

恵南ビルと同等の坪数の物件

恵南ビルと同等の賃料の物件

LINEで最新情報を配信中
気軽に相談可能です