野澤ビル物件ID:28842












- 駅近
- OAフロア
- 個別空調
賃貸条件
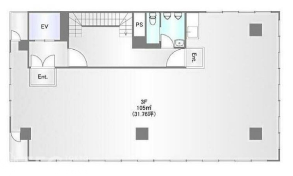
- 階数
- 3階
- 面積
- 31.76坪(104.98㎡)
- 賃料
- 340,000円
- 礼金
- 1ヵ月
- 管理費
- 15,000円
- 預託金
- 4ヵ月
- 償却費
- 2ヶ月分
- 更新料
- 新賃料の1ヶ月分
- 契約期間
- 普通借 3年
- 入居日
- 相談
- 備考
- 火災保険加入要(別途見積)
家賃保証会社利用可(全保連/4cs)
鍵交換希望の場合、交換費借主負担 - その他
- 商業施設近接!目白通り面す!
1フロア1テナント
他階フロア空き有、一括借り上げも相談可
※賃料等は税別表示です。
物件情報
- 物件名
- 野澤ビル
- 住所
- 東京都新宿区中落合3-29-10
- 竣工
- 1968年1月
- 建物規模
- 鉄筋コンクリート造 地上 6階建
- 主要設備
- エレベーター 給湯 駅近 個別空調 OAフロア 光ファイバー
- 特徴
- -
物件を見学したい、空室情報など
物件のお問い合わせ
物件のお問い合わせ
0120-486-656 受付時間|平日10:00~19:00
物件ID【28842】をお伝えください
お問い合わせから10分で返信いたしますこの物件を問い合わせる 交通アクセス
- ・ 落合南長崎駅 徒歩1分
- ・ 中井駅 徒歩10分
- ・ 東長崎駅 徒歩11分
5秒で簡単資料請求