SPROUT IIDABASHI物件ID:24310

  • 駅近
  • 個別空調
  • 機械警備
  • 男女別トイレ

賃貸条件

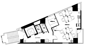
階数
8階
面積
15.82坪(52.29㎡)
賃料
442,960円
礼金
-
管理費
-
預託金
4ヵ月
償却費
ー 
更新料
ー 
契約期間
普通借 2年 
入居日
2026年7月29日
備考
指定清掃業者と貸室内の清掃契約要
指定保証会社加入
その他
2022年8月大規模リニューアル工事実地済み
大きな窓面により明るく開放的な室内空間となっております
内装造作付きセットアップオフィス
(4名用会議室1室、受付、会議室什器つき)
EV不停止機能付

※賃料等は税別表示です。

物件情報

物件名
SPROUT IIDABASHI
住所
東京都千代田区飯田橋3-11-25
竣工
1999年3月
建物規模
鉄骨造 地上 9階建 
主要設備
男女別トイレ 個別空調 機械警備 光ファイバー 24時間利用可 給湯 駅近 エレベーター 
特徴
SPROUT IIDABASHIは透明感のあるグリーンの窓ガラスが印象的で、洗練された雰囲気を感じさせる物件です。
複数路線が集まる飯田橋駅から徒歩1分の場所に位置し、アクセスの良さは最大の魅力となっております。
1999年竣工の本物件は2022年にエントランスやオフィス内を大規模リニューアルしております。
設備面では、OAフロアや男女別トイレ、機械警備など現代的なオフィスに必要な設備を網羅しています。
また周辺には飲食店やコンビニ、公共施設も揃っており、様々なニーズへの対応も可能でございます。
物件を見学したい、空室情報など
物件のお問い合わせ
0120-486-656 受付時間|平日10:00~19:00
物件ID【24310】をお伝えください
お問い合わせから10分で返信いたしますこの物件を問い合わせる

交通アクセス

  • ・ 飯田橋駅 徒歩3分
5秒で簡単資料請求
お名前
Email
TEL
WEB非公開物件がございます
新宿区を中心に15年以上、たくさんのオーナー様の信頼を勝ち得てきたTFCだからこそ
ご紹介できる"非公開物件"がございます!!
お客様一人ひとりに合ったこだわり条件に誠心誠意お応えいたします。
"新宿オフィス"の賃貸情報なら、なんでもお任せください!!
ご来店も大歓迎です
安心してお任せいただけるよう、ご来店をおすすめしております。
お客様のご要望を対面にて、是非!お聞かせください!!
現事務所の解約スケジュールや移転時期、内装工事、各種手続きのタイミング、引渡しまで全てTFCがご提案いたします。
新宿エリアの賃貸不動産は、TFCのエキスパートに是非お任せください!!

近くのエリアで探してみる

エリア
新宿エリア 飯田橋・市ヶ谷
最寄り駅
飯田橋

SPROUT IIDABASHIと同等の坪数の物件

SPROUT IIDABASHIと同等の賃料の物件

LINEで最新情報を配信中
気軽に相談可能です