VORT西新宿Ⅱ(旧:ユニゾ西新宿ビル)物件ID:20400

  • OAフロア
  • 個別空調
  • 男女別トイレ
  • 機械警備
  • 新耐震基準

賃貸条件

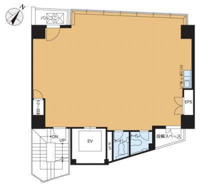
階数
7階
面積
25.76坪(85.15㎡)
賃料
618,240円
礼金
1ヵ月
管理費
-
預託金
5ヵ月
償却費
ー 
更新料
新賃料の1ヶ月分 
契約期間
普通借 2年 
入居日
2026年8月
備考
火災保険・保証会社利用必須

※賃料等は税別表示です。

物件情報

物件名
VORT西新宿Ⅱ(旧:ユニゾ西新宿ビル)
住所
東京都渋谷区代々木3-23-4
竣工
2007年11月
建物規模
鉄骨造 地上11階
主要設備
男女別トイレ 個別空調 エレベーター 天井高2.5M以上 OAフロア 
特徴
交通至便の新宿オフィス
物件を見学したい、空室情報など
物件のお問い合わせ
0120-486-656 受付時間|平日10:00~19:00
物件ID【20400】をお伝えください
お問い合わせから10分で返信いたしますこの物件を問い合わせる

交通アクセス

  • ・ 新宿駅 徒歩7分
  • ・ 都庁前駅 徒歩8分
  • ・ 初台 駅 徒歩8分
VORT西新宿Ⅱ(旧:ユニゾ西新宿ビル) 募集中の区画
階数 坪数 賃料 管理費 坪単価 預託金 入居日
9階 25.76坪 応相談 - - 5ヵ月 2026年6月9日
10階 25.76坪 618,240円 - 24,000円 5ヵ月 2026年7月21日
5秒で簡単資料請求
お名前
Email
TEL
WEB非公開物件がございます
新宿区を中心に15年以上、たくさんのオーナー様の信頼を勝ち得てきたTFCだからこそ
ご紹介できる"非公開物件"がございます!!
お客様一人ひとりに合ったこだわり条件に誠心誠意お応えいたします。
"新宿オフィス"の賃貸情報なら、なんでもお任せください!!
ご来店も大歓迎です
安心してお任せいただけるよう、ご来店をおすすめしております。
お客様のご要望を対面にて、是非!お聞かせください!!
現事務所の解約スケジュールや移転時期、内装工事、各種手続きのタイミング、引渡しまで全てTFCがご提案いたします。
新宿エリアの賃貸不動産は、TFCのエキスパートに是非お任せください!!

近くのエリアで探してみる

エリア
新宿エリア 代々木・千駄ヶ谷
最寄り駅
新宿  / 都庁前  / 初台

VORT西新宿Ⅱ(旧:ユニゾ西新宿ビル)と同等の坪数の物件

VORT西新宿Ⅱ(旧:ユニゾ西新宿ビル)と同等の賃料の物件

LINEで最新情報を配信中
気軽に相談可能です