市ヶ谷中央ビル物件ID:16723






























- 駅近
- 機械警備
- EV2機以上
- OAフロア
- 駐車場付
賃貸条件
- 階数
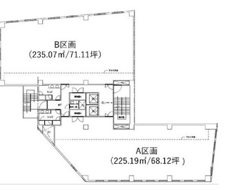
- 6F-B
- 面積
- 71.11坪(235.06㎡)
- 賃料
- 924,430円
- 礼金
- 1ヵ月
- 管理費
- -
- 預託金
- 10ヵ月
- 償却費
- 1ヶ月分
- 更新料
- 相談
- 契約期間
- 定借 3年
- 入居日
- 即日
- 備考
- 平置き駐車場:月額45000円(税別)
屋上看板掲出可:月額250000円(税別)
貸主指定保証会社・火災保険加入必須
退去時原状回復義務あり - その他
- 靖国通り沿いで視認性良好
諸条件ご相談ください!
※賃料等は税別表示です。
物件情報
- 物件名
- 市ヶ谷中央ビル
- 住所
- 東京都新宿区市谷八幡町14
- 竣工
- 1974年9月
- 建物規模
- 鉄骨造 地上 9階建
- 主要設備
- エレベーター2基 個別空調 24時間利用可 光ファイバー 男女別トイレ 機械警備 駐車場 駅近
- 特徴
- 外堀通りに面す、レイアウトしやすい無柱空間、重厚感あるエレベーターホール、スクール、クリニック等業種相談可能!
物件を見学したい、空室情報など
物件のお問い合わせ
物件のお問い合わせ
0120-486-656 受付時間|平日10:00~19:00
物件ID【16723】をお伝えください
お問い合わせから10分で返信いたしますこの物件を問い合わせる 交通アクセス
- ・ 市ケ谷 駅 徒歩3分
5秒で簡単資料請求