エルツ6物件ID:13443

  • 駅近
  • 駐車場付
  • 新耐震基準
  • 24時間使用可
  • OAフロア
  • 個別空調
  • 男女別トイレ
  • EV2機以上

賃貸条件

階数
2階
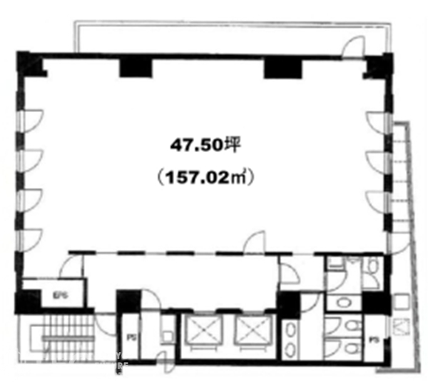
面積
47.5坪(157.02㎡)
賃料
783,750円
礼金
-
管理費
応相談
預託金
10ヵ月
償却費
10% ※中途解約の場合のみ
更新料
新賃料の1ヶ月分 
契約期間
普通借 2年 
入居日
2026年4月上旬
備考
駐車場:44000円(税込)
ゴミ処理費:3300円/月(税込)
保証会社加入必須
その他
複数路線利用可能
夜間オートロック
来客対応のも便利な環境

※賃料等は税別表示です。

物件情報

物件名
エルツ6
住所
東京都新宿区新宿6-29-6
竣工
1994年7月
建物規模
鉄骨鉄筋コンクリート造 地下1階 地上10階建 
主要設備
エレベーター2基 個別空調 機械警備 男女別トイレ 24時間利用可 光ファイバー 駐車場 OAフロア 駅近 新耐震 
特徴
新宿イーストサイドスクエア隣接!飲食モール至近!!
物件を見学したい、空室情報など
物件のお問い合わせ
0120-486-656 受付時間|平日10:00~19:00
物件ID【13443】をお伝えください
お問い合わせから10分で返信いたしますこの物件を問い合わせる

交通アクセス

  • ・ 東新宿駅 徒歩2分
  • ・ 新宿三丁目駅 徒歩6分
  • ・ 西武新宿駅 徒歩8分
5秒で簡単資料請求
お名前
Email
TEL
WEB非公開物件がございます
新宿区を中心に15年以上、たくさんのオーナー様の信頼を勝ち得てきたTFCだからこそ
ご紹介できる"非公開物件"がございます!!
お客様一人ひとりに合ったこだわり条件に誠心誠意お応えいたします。
"新宿オフィス"の賃貸情報なら、なんでもお任せください!!
ご来店も大歓迎です
安心してお任せいただけるよう、ご来店をおすすめしております。
お客様のご要望を対面にて、是非!お聞かせください!!
現事務所の解約スケジュールや移転時期、内装工事、各種手続きのタイミング、引渡しまで全てTFCがご提案いたします。
新宿エリアの賃貸不動産は、TFCのエキスパートに是非お任せください!!

近くのエリアで探してみる

エリア
新宿エリア 東新宿・大久保・高田馬場
最寄り駅
東新宿  / 新宿三丁目  / 西武新宿  / 新宿

エルツ6と同等の坪数の物件

エルツ6と同等の賃料の物件

LINEで最新情報を配信中
気軽に相談可能です