アパルトマンイトウ物件ID:43927

  • 駅近

賃貸条件

階数
9階906
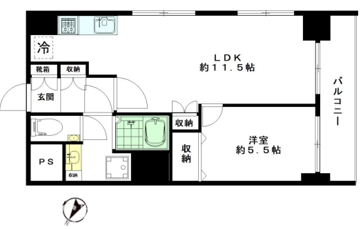
面積
13.69坪(45.25㎡)
賃料
215,000円
礼金
1ヵ月
管理費
-
預託金
4ヵ月
償却費
ー 
更新料
ー 
契約期間
定借 2年 
入居日
相談 
備考
エステサロン等相談
サービス店舗の場合、賃料247500円(税込)
総合火災保険要加入
保証会社要加入(宅建ブレインズ)
その他
エレベーター
宅配ボックス
防犯カメラ
CATV
グリル付3口ガスキッチン
独立洗面台
トイレウォシュレット
室内洗濯機置き場
モニター付きインターホン
玄関鍵ダブルロック
エアコン2基

※賃料等は税別表示です。

物件情報

物件名
アパルトマンイトウ
住所
東京都渋谷区恵比寿西1-15-2
竣工
1979年3月
建物規模
鉄骨鉄筋コンクリート造 地上10 階建 
主要設備
個別空調 エレベーター 駅近 
特徴
アパルトマンイトウ(恵比寿西1丁目)は恵比寿駅徒歩4分、代官山駅までも徒歩7分の複数路線利用可能な物件です。
本物件はエレベーター、オートロック、宅配ボックス等の設備が整っております。
また区画によってはオフィスのほか一部サービス店舗ご相談可能な区画もございます。
周辺には様々な店舗があり、多様なニーズに対応できる点も魅力でございます。
物件を見学したい、空室情報など
物件のお問い合わせ
0120-486-656 受付時間|平日10:00~19:00
物件ID【43927】をお伝えください
お問い合わせから10分で返信いたしますこの物件を問い合わせる

交通アクセス

  • ・ 恵比寿駅 徒歩4分
  • ・ 代官山駅 徒歩7分
  • ・ 中目黒駅 徒歩15分
5秒で簡単資料請求
お名前
Email
TEL
WEB非公開物件がございます
新宿区を中心に15年以上、たくさんのオーナー様の信頼を勝ち得てきたTFCだからこそ
ご紹介できる"非公開物件"がございます!!
お客様一人ひとりに合ったこだわり条件に誠心誠意お応えいたします。
"渋谷オフィス"の賃貸情報なら、なんでもお任せください!!
ご来店も大歓迎です
安心してお任せいただけるよう、ご来店をおすすめしております。
お客様のご要望を対面にて、是非!お聞かせください!!
現事務所の解約スケジュールや移転時期、内装工事、各種手続きのタイミング、引渡しまで全てTFCがご提案いたします。
渋谷エリアの賃貸不動産は、TFCのエキスパートに是非お任せください!!

近くのエリアで探してみる

エリア
渋谷エリア 広尾・恵比寿・代官山
最寄り駅
恵比寿  / 代官山  / 中目黒  / 渋谷

アパルトマンイトウと同等の坪数の物件

アパルトマンイトウと同等の賃料の物件

LINEで最新情報を配信中
気軽に相談可能です