S-Frontier渋谷青山通り(旧:エキスパートオフィス渋谷)物件ID:43864

  • 天井高2,500mm以上
  • OAフロア
  • 個別空調
  • 機械警備
  • 男女別トイレ

賃貸条件

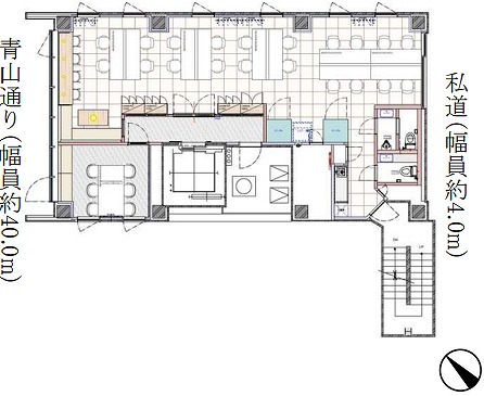
階数
3階
面積
34.17坪(112.95㎡)
賃料
1,469,310円
礼金
-
管理費
-
預託金
-
償却費
ー 
更新料
ー 
契約期間
定借 2年 
入居日
即日 
備考
契約開始より12ヶ月間解約不可(12ヶ月間以内解約の場合、違約金が発生いたします)
入居時クリーニング費負担で、 原状回復義務なし
その他
2025年11月、内装造作付きセットアップ工事完了
(受付、ラウンジスペース、テレカンブース2室、6名用会議室付)

※賃料等は税別表示です。

物件情報

物件名
S-Frontier渋谷青山通り(旧:エキスパートオフィス渋谷)
住所
東京都渋谷区渋谷2-10-15
竣工
2014年9月
建物規模
鉄骨造 地上 10階建 
主要設備
男女別トイレ 光ファイバー 個別空調 エレベーター 機械警備 
特徴
エキスパートオフィス渋谷は、東京都渋谷区渋谷2丁目に位置する利便性抜群のオフィス物件です。JR山手線の渋谷駅から徒歩圏内で、さらに東京メトロや東急電鉄の複数路線も利用可能なため、通勤アクセスは非常に便利です。青山通り沿いに面しており、視認性が良くビジネスの顔としてふさわしい立地となっています。首都高速の出入口も近いため、車での移動や荷物の搬入出もスムーズに行えます。1階のエントランスにはコンシェルジュが常駐しており、不必要な営業の訪問を防ぐなど、セキュリティ面も充実しています。また、用途や人数に合わせて利用できる様々なサイズの会議室が用意されているため、ビジネスシーンに合わせた柔軟な対応が可能です。快適かつ機能的なオフィス環境を求める企業にとって、理想的な物件です。
物件を見学したい、空室情報など
物件のお問い合わせ
0120-486-656 受付時間|平日10:00~19:00
物件ID【43864】をお伝えください
お問い合わせから10分で返信いたしますこの物件を問い合わせる

交通アクセス

  • ・ 渋谷駅 徒歩6分
S-Frontier渋谷青山通り(旧:エキスパートオフィス渋谷) 募集中の区画
階数 坪数 賃料 管理費 坪単価 預託金 入居日
4階 34.17坪 1,537,650円 - 44,900円 - 即日 
5階 34.17坪 1,537,650円 - 44,900円 - 即日 
2階 34.17坪 1,469,310円 - 43,000円 - 即日 
5秒で簡単資料請求
お名前
Email
TEL
WEB非公開物件がございます
新宿区を中心に15年以上、たくさんのオーナー様の信頼を勝ち得てきたTFCだからこそ
ご紹介できる"非公開物件"がございます!!
お客様一人ひとりに合ったこだわり条件に誠心誠意お応えいたします。
"渋谷オフィス"の賃貸情報なら、なんでもお任せください!!
ご来店も大歓迎です
安心してお任せいただけるよう、ご来店をおすすめしております。
お客様のご要望を対面にて、是非!お聞かせください!!
現事務所の解約スケジュールや移転時期、内装工事、各種手続きのタイミング、引渡しまで全てTFCがご提案いたします。
渋谷エリアの賃貸不動産は、TFCのエキスパートに是非お任せください!!

近くのエリアで探してみる

エリア
渋谷エリア 渋谷駅周辺
最寄り駅
渋谷

S-Frontier渋谷青山通り(旧:エキスパートオフィス渋谷)の最寄りの物件

S-Frontier渋谷青山通り(旧:エキスパートオフィス渋谷)と同等の坪数の物件

S-Frontier渋谷青山通り(旧:エキスパートオフィス渋谷)と同等の賃料の物件

LINEで最新情報を配信中
気軽に相談可能です