P's GAIENMAE物件ID:43659

  • 築浅
  • 駅近
  • 新耐震基準
  • 機械警備

賃貸条件

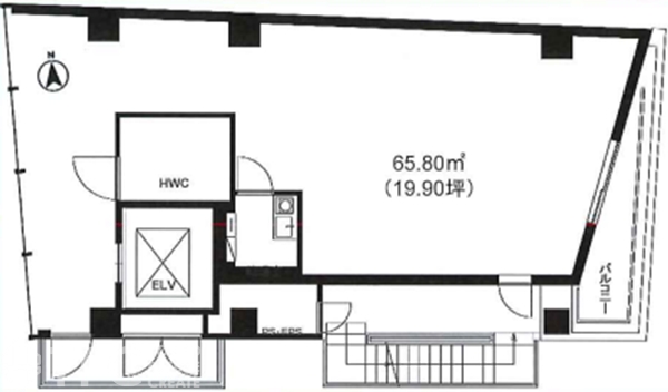
階数
4階
面積
19.9坪(65.78㎡)
賃料
527,300円
礼金
-
管理費
59,700円
預託金
6ヵ月
償却費
1ヶ月分 
更新料
相談 
契約期間
定借 3年 
入居日
2026年4月上旬
備考
借主原状回復義務あり
保証会社加入必須
借家人賠償保険加入必須
店舗利用の場合、条件変更有
その他
神宮スタジアム通りに面する
1フロア1テナント

※賃料等は税別表示です。

物件情報

物件名
P's GAIENMAE
住所
東京都港区北青山2-7-2
竣工
2022年11月
建物規模
鉄骨造 地上 10階建 
主要設備
個別空調 エレベーター 給湯 機械警備 駅近 新耐震 
特徴
物件を見学したい、空室情報など
物件のお問い合わせ
0120-486-656 受付時間|平日10:00~19:00
物件ID【43659】をお伝えください
お問い合わせから10分で返信いたしますこの物件を問い合わせる

交通アクセス

  • ・ 外苑前駅 徒歩2分
5秒で簡単資料請求
お名前
Email
TEL
WEB非公開物件がございます
新宿区を中心に15年以上、たくさんのオーナー様の信頼を勝ち得てきたTFCだからこそ
ご紹介できる"非公開物件"がございます!!
お客様一人ひとりに合ったこだわり条件に誠心誠意お応えいたします。
"渋谷オフィス"の賃貸情報なら、なんでもお任せください!!
ご来店も大歓迎です
安心してお任せいただけるよう、ご来店をおすすめしております。
お客様のご要望を対面にて、是非!お聞かせください!!
現事務所の解約スケジュールや移転時期、内装工事、各種手続きのタイミング、引渡しまで全てTFCがご提案いたします。
渋谷エリアの賃貸不動産は、TFCのエキスパートに是非お任せください!!

近くのエリアで探してみる

エリア
渋谷エリア 原宿・表参道・青山一丁目
最寄り駅
外苑前

P's GAIENMAEの最寄りの物件

P's GAIENMAEと同等の坪数の物件

P's GAIENMAEと同等の賃料の物件

LINEで最新情報を配信中
気軽に相談可能です