ガレット南青山物件ID:43586

  • 新耐震基準
  • 個別空調

賃貸条件

階数
***********
面積
***********
賃料
***********
礼金
***********
管理費
***********
共益費
***********
敷金
***********
保証金
***********
償却費
***********
更新料
***********
契約期間
***********

賃貸条件に付きましてはお問合せ下さい

0120-486-656 受付時間|平日10:00~19:00
物件ID【43586】をお伝えください

物件情報

物件名
ガレット南青山
住所
東京都港区南青山1-5-12
竣工
1988年4月
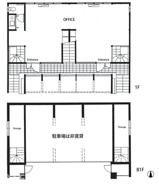
建物規模
木造一部鉄筋コンクリート造 地下 1階 地上 3階建 
主要設備
特徴
物件を見学したい、空室情報など
物件のお問い合わせ
0120-486-656 受付時間|平日10:00~19:00
物件ID【43586】をお伝えください
お問い合わせから10分で返信いたしますこの建物を問い合わせる

交通アクセス

  • ・ 青山一丁目駅 徒歩5分
  • ・ 乃木坂駅 徒歩7分
5秒で簡単資料請求
お名前
Email
TEL
WEB非公開物件がございます
新宿区を中心に15年以上、たくさんのオーナー様の信頼を勝ち得てきたTFCだからこそ
ご紹介できる"非公開物件"がございます!!
お客様一人ひとりに合ったこだわり条件に誠心誠意お応えいたします。
"渋谷オフィス"の賃貸情報なら、なんでもお任せください!!
ご来店も大歓迎です
安心してお任せいただけるよう、ご来店をおすすめしております。
お客様のご要望を対面にて、是非!お聞かせください!!
現事務所の解約スケジュールや移転時期、内装工事、各種手続きのタイミング、引渡しまで全てTFCがご提案いたします。
渋谷エリアの賃貸不動産は、TFCのエキスパートに是非お任せください!!

近くのエリアで探してみる

エリア
渋谷エリア 原宿・表参道・青山一丁目
最寄り駅
青山一丁目  / 乃木坂

ガレット南青山と同等の坪数の物件

ガレット南青山と同等の賃料の物件

LINEで最新情報を配信中
気軽に相談可能です