キングビル物件ID:43581

  • OAフロア
  • 機械警備
  • 築浅

賃貸条件

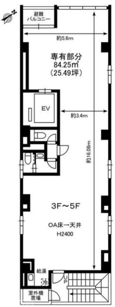
階数
4階
面積
25.48坪(84.22㎡)
賃料
840,800円
礼金
1ヵ月
管理費
-
預託金
10ヵ月
償却費
1ヶ月分 
更新料
ー 
契約期間
定借 2年 
入居日
即日 
備考
保証会社要加入
火災保険要加入
ゴミ処理費は個別契約
電気・水道メーター検針請求
ネットワーク工事立会費あり
サイン工事費あり
退去時のクリーニング費用は借主負担となります
契約開始日より1年以内に解約の場合は、違約金として賃料/共益費の1ヶ月分相当額のペナルティが発生します
その他
ミニキッチン
トイレ2ヶ所
給湯
ビルトインエアコン3基
24時間セキュリティ
防犯カメラ
火災報知器
事務所仕上げ
エレベーターあり
エントランス開錠時間(7時-22時)
SECOM一体型セキュリティキーシステム採用
内照式看板2ヶ所
家具類のリースもご相談可能

※賃料等は税別表示です。

物件情報

物件名
キングビル
住所
東京都渋谷区渋谷2-9-10
竣工
1964年10月
建物規模
鉄筋コンクリート造 地下 1階 地上 5階建 
主要設備
給湯 個別空調 OAフロア エレベーター 機械警備 新耐震 
特徴
キングビルは渋谷区渋谷2丁目にある物件です。JR山手線渋谷駅徒歩圏内、他東京メトロや東急電鉄などが利用できる立地となっております。
首都高の出入口から近く車移動や荷物の搬入出もしやすい立地となります。
青山通り沿いの物件となり視認性は良好となります。
2024年8月現在新規建て替え中となります。
渋谷のみならず表参道からのアクセスも可能となりお客様の呼び込みはしやすい立地となります。
物件を見学したい、空室情報など
物件のお問い合わせ
0120-486-656 受付時間|平日10:00~19:00
物件ID【43581】をお伝えください
お問い合わせから10分で返信いたしますこの物件を問い合わせる

交通アクセス

  • ・ 渋谷駅 徒歩9分
  • ・ 表参道駅 徒歩10分
  • ・ 明治神宮前〈原宿〉駅 徒歩17分
キングビル 募集中の区画
階数 坪数 賃料 管理費 坪単価 預託金 入居日
8階 25.48坪 713,400円 - 27,900円 3ヵ月 相談 
9階 25.48坪 764,400円 - 30,000円 6ヵ月 即日 
5秒で簡単資料請求
お名前
Email
TEL
WEB非公開物件がございます
新宿区を中心に15年以上、たくさんのオーナー様の信頼を勝ち得てきたTFCだからこそ
ご紹介できる"非公開物件"がございます!!
お客様一人ひとりに合ったこだわり条件に誠心誠意お応えいたします。
"渋谷オフィス"の賃貸情報なら、なんでもお任せください!!
ご来店も大歓迎です
安心してお任せいただけるよう、ご来店をおすすめしております。
お客様のご要望を対面にて、是非!お聞かせください!!
現事務所の解約スケジュールや移転時期、内装工事、各種手続きのタイミング、引渡しまで全てTFCがご提案いたします。
渋谷エリアの賃貸不動産は、TFCのエキスパートに是非お任せください!!

近くのエリアで探してみる

エリア
渋谷エリア 渋谷駅周辺
最寄り駅
渋谷  / 表参道  / 明治神宮前〈原宿〉

キングビルの最寄りの物件

キングビルと同等の坪数の物件

キングビルと同等の賃料の物件

LINEで最新情報を配信中
気軽に相談可能です