リードシー恵比寿ビル物件ID:43022

  • 駅近
  • 個別空調
  • 機械警備
  • 男女別トイレ
  • 駐車場付

賃貸条件

階数
B1階
面積
28.29坪(93.51㎡)
賃料
1,270,000円
礼金
-
管理費
-
預託金
-
償却費
ー 
更新料
ー 
契約期間
普通借 2年 
入居日
2026年2月上旬
備考
平置き駐車場:70000円(税別)
クリーニング費用:1ヶ月分
保証会社加入必須
その他
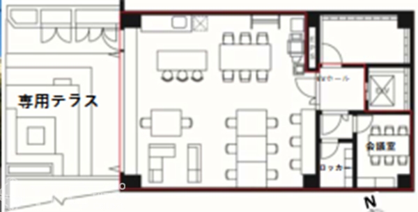
フルセットアップオフィス

※賃料等は税別表示です。

物件情報

物件名
リードシー恵比寿ビル
住所
東京都渋谷区恵比寿南3-2-13
竣工
1993年8月
建物規模
鉄筋コンクリート造 地下1階 地上4階建 
主要設備
個別空調 機械警備 男女別トイレ 駐車場 
特徴
リードシー恵比寿ビル(恵比寿南3丁目)は、駒沢通りから1本入っており落ち着いた環境です。
6名会議室やローカー等も完備されたフルセットアップオフィスとなっております。
共用部もリニューアルされておりオシャレで綺麗なオフィスビルです。
物件を見学したい、空室情報など
物件のお問い合わせ
0120-486-656 受付時間|平日10:00~19:00
物件ID【43022】をお伝えください
お問い合わせから10分で返信いたしますこの物件を問い合わせる

交通アクセス

  • ・ 代官山駅 徒歩6分
  • ・ 恵比寿駅 徒歩7分
5秒で簡単資料請求
お名前
Email
TEL
WEB非公開物件がございます
新宿区を中心に15年以上、たくさんのオーナー様の信頼を勝ち得てきたTFCだからこそ
ご紹介できる"非公開物件"がございます!!
お客様一人ひとりに合ったこだわり条件に誠心誠意お応えいたします。
"渋谷オフィス"の賃貸情報なら、なんでもお任せください!!
ご来店も大歓迎です
安心してお任せいただけるよう、ご来店をおすすめしております。
お客様のご要望を対面にて、是非!お聞かせください!!
現事務所の解約スケジュールや移転時期、内装工事、各種手続きのタイミング、引渡しまで全てTFCがご提案いたします。
渋谷エリアの賃貸不動産は、TFCのエキスパートに是非お任せください!!

近くのエリアで探してみる

エリア
渋谷エリア 広尾・恵比寿・代官山
最寄り駅
代官山  / 恵比寿

リードシー恵比寿ビルと同等の坪数の物件

リードシー恵比寿ビルと同等の賃料の物件

LINEで最新情報を配信中
気軽に相談可能です