青葉台石橋ビル物件ID:42862

  • 駅近
  • 新耐震基準
  • 24時間使用可
  • 個別空調
  • 機械警備
  • 男女別トイレ
  • EV2機以上

賃貸条件

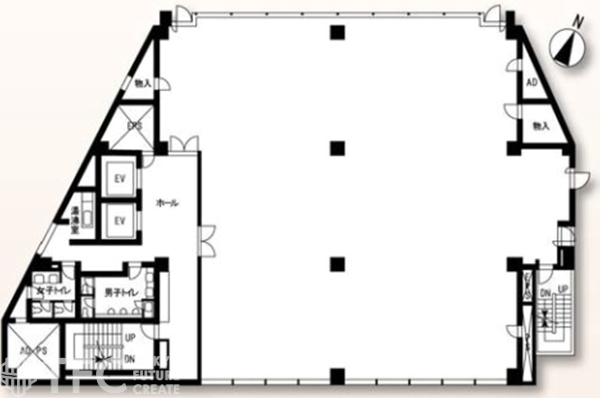
階数
7階
面積
119.74坪(395.82㎡)
賃料
1,676,360円
礼金
-
管理費
478,910円
預託金
12ヵ月
償却費
ー 
更新料
ー 
契約期間
普通借 2年 
入居日
2026年4月1日以降
その他
7階居抜き入居可能
※原状回復工事発注期限の2026年1月末日までの契約に限る

※賃料等は税別表示です。

物件情報

物件名
青葉台石橋ビル
住所
東京都目黒区青葉台3-1-19
竣工
1987年3月
建物規模
鉄骨鉄筋コンクリート造 地上 9階建 
主要設備
新耐震 機械警備 個別空調 24時間利用可 エレベーター 駐車場 男女別トイレ 駅近 
特徴
物件を見学したい、空室情報など
物件のお問い合わせ
0120-486-656 受付時間|平日10:00~19:00
物件ID【42862】をお伝えください
お問い合わせから10分で返信いたしますこの物件を問い合わせる

交通アクセス

  • ・ 神泉駅 徒歩4分
  • ・ 渋谷駅 徒歩12分
5秒で簡単資料請求
お名前
Email
TEL
WEB非公開物件がございます
新宿区を中心に15年以上、たくさんのオーナー様の信頼を勝ち得てきたTFCだからこそ
ご紹介できる"非公開物件"がございます!!
お客様一人ひとりに合ったこだわり条件に誠心誠意お応えいたします。
"渋谷オフィス"の賃貸情報なら、なんでもお任せください!!
ご来店も大歓迎です
安心してお任せいただけるよう、ご来店をおすすめしております。
お客様のご要望を対面にて、是非!お聞かせください!!
現事務所の解約スケジュールや移転時期、内装工事、各種手続きのタイミング、引渡しまで全てTFCがご提案いたします。
渋谷エリアの賃貸不動産は、TFCのエキスパートに是非お任せください!!
LINEで最新情報を配信中
気軽に相談可能です