第22SYビル物件ID:42497

  • 駅近
  • 24時間使用可
  • 個別空調

賃貸条件

階数
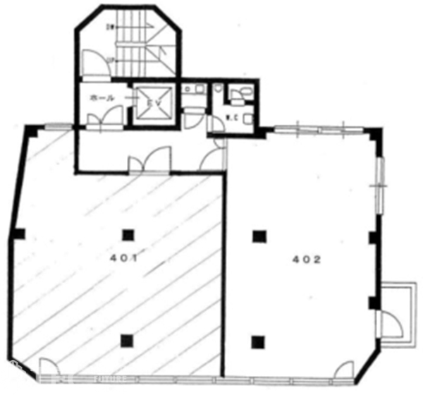
4階402号室
面積
20坪(66.11㎡)
賃料
240,000円
礼金
-
管理費
-
預託金
6ヵ月
償却費
10% 
更新料
新賃料の1ヶ月分 
契約期間
定借 3年 
入居日
2026年1月中旬
備考
火災保険要加入
保証会社要加入
その他
窓面多く明るいオフィス空間!
居抜き相談可

※賃料等は税別表示です。

物件情報

物件名
第22SYビル
住所
東京都渋谷区富ヶ谷1-3-8
竣工
1972年1月
建物規模
鉄骨鉄筋コンクリート造 地上 6階建 
主要設備
駅近 給湯 個別空調 
特徴
物件を見学したい、空室情報など
物件のお問い合わせ
0120-486-656 受付時間|平日10:00~19:00
物件ID【42497】をお伝えください
お問い合わせから10分で返信いたしますこの物件を問い合わせる

交通アクセス

  • ・ 代々木八幡駅 徒歩1分
  • ・ 代々木公園駅 徒歩1分
5秒で簡単資料請求
お名前
Email
TEL
WEB非公開物件がございます
新宿区を中心に15年以上、たくさんのオーナー様の信頼を勝ち得てきたTFCだからこそ
ご紹介できる"非公開物件"がございます!!
お客様一人ひとりに合ったこだわり条件に誠心誠意お応えいたします。
"渋谷オフィス"の賃貸情報なら、なんでもお任せください!!
ご来店も大歓迎です
安心してお任せいただけるよう、ご来店をおすすめしております。
お客様のご要望を対面にて、是非!お聞かせください!!
現事務所の解約スケジュールや移転時期、内装工事、各種手続きのタイミング、引渡しまで全てTFCがご提案いたします。
渋谷エリアの賃貸不動産は、TFCのエキスパートに是非お任せください!!

近くのエリアで探してみる

エリア
渋谷エリア 参宮橋・代々木上原
最寄り駅
代々木八幡  / 代々木公園

参宮橋・代々木上原で第22SYビルに似た条件の物件

第22SYビルと同等の坪数の物件

第22SYビルと同等の賃料の物件

LINEで最新情報を配信中
気軽に相談可能です