レインボービル物件ID:41926










- 駅近
賃貸条件
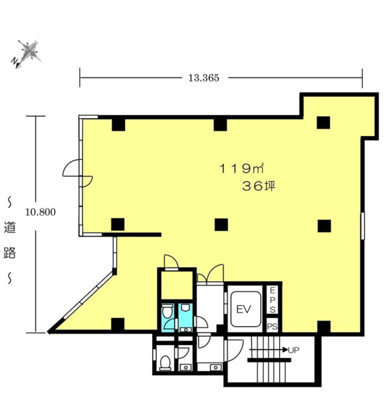
- 階数
- 2階
- 面積
- 36坪(119㎡)
- 賃料
- 900,000円
- 礼金
- 2ヵ月
- 管理費
- 90,000円
- 預託金
- 4ヵ月
- 償却費
- ー
- 更新料
- 新賃料の1ヶ月分
- 契約期間
- 定借 2年(再契約相談可)
- 入居日
- 2025年12月1日以降
- 備考
- テナント総合保険加入必須
家賃保証会社加入必須
退去時 原状回復義務あり - その他
- 明治通り至近!
業種相談
エレベーター
トイレ
・ガス無し
※現況優先
※賃料等は税別表示です。
物件情報
- 物件名
- レインボービル
- 住所
- 東京都渋谷区神宮前1-9-11
- 竣工
- 1984年12月
- 建物規模
- 鉄骨鉄筋コンクリート造 地下 1階 地上 3階建
- 主要設備
- 駅近 エレベーター 機械警備 個別空調
- 特徴
- -
物件を見学したい、空室情報など
物件のお問い合わせ
物件のお問い合わせ
0120-486-656 受付時間|平日10:00~19:00
物件ID【41926】をお伝えください
お問い合わせから10分で返信いたしますこの物件を問い合わせる 交通アクセス
- ・ 明治神宮前〈原宿〉駅 徒歩3分
- ・ 原宿駅 徒歩5分
5秒で簡単資料請求