S-Frontier渋谷青山通り(旧:エキスパートオフィス渋谷)物件ID:41886














- 天井高2,500mm以上
- OAフロア
- 個別空調
- 機械警備
- 男女別トイレ
賃貸条件
- 階数
- 5階
- 面積
- 34.17坪(112.95㎡)
- 賃料
- 1,537,650円
- 礼金
- -
- 管理費
- -
- 預託金
- -
- 償却費
- ー
- 更新料
- ー
- 契約期間
- 定借 2年
- 入居日
- 即日
- 備考
- 契約開始より12ヶ月間解約不可(12ヶ月間以内解約の場合、違約金が発生いたします) 原状回復義務なし(現状変更した場合や破損等を除く)
コミュニティ費:月額47,000円(貸室内清掃費※水回り・EVホール含む、ごみ処理費、Wi-Fi通信費)
クリーニング費:240,000円(入居時)
SFビルサポート株式会社と保証委託契約を締結していただきます。 ※与信状況によって敷金の預託をお願いする場合がございます。 - その他
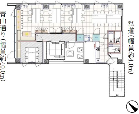
- 2025年10月、内装造作付きセットアップ工事完了(受付、ラウンジスペース、テレカンブース2室、6名用会議室付)
※賃料等は税別表示です。
物件情報
- 物件名
- S-Frontier渋谷青山通り(旧:エキスパートオフィス渋谷)
- 住所
- 東京都渋谷区渋谷2-10-15
- 竣工
- 2014年9月
- 建物規模
- 鉄骨造 地上 10階建
- 主要設備
- 男女別トイレ 光ファイバー 個別空調 エレベーター 機械警備
- 特徴
- エキスパートオフィス渋谷は渋谷区渋谷2丁目にある物件です。JR山手線渋谷駅徒歩圏内、他東京メトロや東急電鉄などが利用できる立地となっております。
首都高の出入口から近く車移動や荷物の搬入出もしやすい立地となります。
青山通り沿いの物件となり視認性は良好となります。
1階エントランスにはコンシェルジュがおり不必要な営業等をブロックしてくれます。
様々な大きさの会議室を借りることができ用途や人数に合わせてご利用下さい。
物件を見学したい、空室情報など
物件のお問い合わせ
物件のお問い合わせ
0120-486-656 受付時間|平日10:00~19:00
物件ID【41886】をお伝えください
お問い合わせから10分で返信いたしますこの物件を問い合わせる 交通アクセス
- ・ 渋谷駅 徒歩6分
S-Frontier渋谷青山通り(旧:エキスパートオフィス渋谷) 募集中の区画
階数 | 坪数 | 賃料 | 管理費 | 坪単価 | 預託金 | 入居日 |
---|---|---|---|---|---|---|
4階 | 34.17坪 | 1,537,650円 | - | 44,900円 | - | 即日 |
5秒で簡単資料請求