渋谷董友ビルV物件ID:41554












- OAフロア
- 個別空調
- 機械警備
- 男女別トイレ
- 駐車場付
賃貸条件
- 階数
- 5階
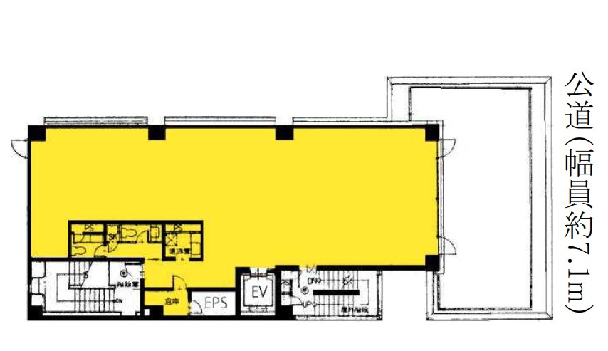
- 面積
- 48.51坪(160.35㎡)
- 賃料
- 1,139,990円
- 礼金
- -
- 管理費
- 169,780円
- 預託金
- 12ヵ月
- 償却費
- ー
- 更新料
- ー
- 契約期間
- 普通借 2年
- 入居日
- 相談
- 備考
- 契約面積にはトイレ・給湯室などの面積含む
指定保証会社との保証委託契約をしていただく場合、預託金額を相談できます - その他
- 渋谷区渋谷アドレスの居抜きオフィス!
窓面が多く、開放的な空間
居抜きでのお引き渡しが可能なため、内装費を抑え、速やかなご入居が可能です
※什器等のお引き渡しは相談
天井高:2600mm
エレベーター(不停止機能付き)
床仕様:OAフロア
駐車場:あり 総台数5台(空き要確認)
※現況優先
※賃料等は税別表示です。
物件情報
- 物件名
- 渋谷董友ビルV
- 住所
- 東京都渋谷区渋谷1-19-5
- 竣工
- 1993年3月
- 建物規模
- 鉄筋コンクリート造 地下 1階 地上 5階建
- 主要設備
- 男女別トイレ 個別空調 機械警備 エレベーター OAフロア 駐車場
- 特徴
- 渋谷董友ビルV(渋谷1丁目)は青山通りや明治通りから少し入った「静かなビジネス街」に位置し、落ち着いた雰囲気が魅力の物件です。
グレーの石造+ガラス張りを基調にした外観は、上質かつ洗練された印象となっており、黒を基調とした重厚なエントランスも印象的です。
渋谷駅と表参道駅が徒歩圏内にあり、都内各所への移動もスムーズにすることが可能です。
また建物設備も充実しており、個別空調やOAフロア、男女別トイレ等魅力が非常に多い物件でございます。
物件を見学したい、空室情報など
物件のお問い合わせ
物件のお問い合わせ
0120-486-656 受付時間|平日10:00~19:00
物件ID【41554】をお伝えください
お問い合わせから10分で返信いたしますこの物件を問い合わせる 交通アクセス
- ・ 表参道駅 徒歩7分
- ・ 渋谷駅 徒歩9分
5秒で簡単資料請求