表参道グランビル物件ID:41375




- 駅近
- 24時間使用可
- 個別空調
- 機械警備
- 男女別トイレ
- EV2機以上
賃貸条件
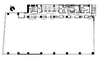
- 階数
- 5階
- 面積
- 316.56坪(1046.45㎡)
- 賃料
- 12,029,280円
- 礼金
- -
- 管理費
- -
- 預託金
- 12ヵ月
- 償却費
- ー
- 更新料
- ー
- 契約期間
- 定借 3年 再契約相談可
- 入居日
- 2026年7月
- その他
- エレベーター4基
※賃料等は税別表示です。
物件情報
- 物件名
- 表参道グランビル
- 住所
- 東京都港区南青山3-8-38
- 竣工
- 2008年6月
- 建物規模
- 鉄骨造 地下 1階 地上 11階建
- 主要設備
- 24時間利用可 エレベーター2基以上 個別空調 機械警備 男女別トイレ OAフロア
- 特徴
- -
物件を見学したい、空室情報など
物件のお問い合わせ
物件のお問い合わせ
0120-486-656 受付時間|平日10:00~19:00
物件ID【41375】をお伝えください
お問い合わせから10分で返信いたしますこの物件を問い合わせる 交通アクセス
- ・ 表参道駅 徒歩4分
- ・ 外苑前駅 徒歩5分
- ・ 明治神宮前〈原宿〉駅 徒歩13分
5秒で簡単資料請求