VORT渋谷eastⅡ物件ID:37292




















- 築浅
- 天井高2,700mm以上
- OAフロア
- 新耐震基準
- 個別空調
- 機械警備
- 男女別トイレ
賃貸条件
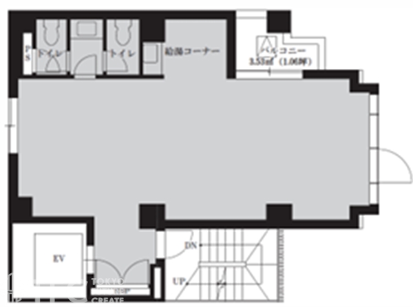
- 階数
- 7階
- 面積
- 17.05坪(56.36㎡)
- 賃料
- 682,000円
- 礼金
- -
- 管理費
- -
- 預託金
- 5ヵ月
- 償却費
- ー
- 更新料
- 新賃料の1ヶ月分
- 契約期間
- 普通借 2年
- 入居日
- 2025年7月上旬
- 備考
- 敷金:店舗10ヶ月
保証会社加入時、償却無
保証会社加入要(VRサポート)
火災保険加入要
テナント案内サインあり(別途使用料あり) - その他
- 美容サロン、パーソナルジム等サービス店舖可
カフェ、バー等軽飲食可
※重飲食・物販不可
ガス引き込みあり
※賃料等は税別表示です。
物件情報
- 物件名
- VORT渋谷eastⅡ
- 住所
- 東京都渋谷区渋谷1-7-2
- 竣工
- 2025年6月
- 建物規模
- 鉄骨造 地上 11階建
- 主要設備
- 新耐震 天井高2.5M以上 OAフロア 個別空調 男女別トイレ エレベーター
- 特徴
- 2025年6月竣工予定の地上11階・鉄骨造新築ビル。渋谷駅(JR・東京メトロ・東急・京王)徒歩6分、表参道駅も徒歩8分とアクセス良好です。14~17坪の1フロア1テナント設計で、男女別トイレ・個別空調・ガス設備を完備。青山通り裏手ながら賑わいのあるエリアに立地し、オフィスだけでなくサロンや軽飲食利用にも適した魅力的な物件です。
物件を見学したい、空室情報など
物件のお問い合わせ
物件のお問い合わせ
0120-486-656 受付時間|平日10:00~19:00
物件ID【37292】をお伝えください
お問い合わせから10分で返信いたしますこの物件を問い合わせる 交通アクセス
- ・ 渋谷駅 徒歩8分
VORT渋谷eastⅡ 募集中の区画
階数 | 坪数 | 賃料 | 管理費 | 坪単価 | 預託金 | 入居日 |
---|---|---|---|---|---|---|
2階 | 17.17坪 | 772,650円 | - | 45,000円 | 5ヵ月 | 2025年7月上旬 |
3階 | 17.15坪 | 686,000円 | - | 40,000円 | 5ヵ月 | 2025年7月上旬 |
4階 | 17.12坪 | 684,800円 | - | 40,000円 | 5ヵ月 | 2025年7月上旬 |
5階 | 17.1坪 | 684,000円 | - | 40,000円 | 5ヵ月 | 2025年7月上旬 |
6階 | 17.07坪 | 682,800円 | - | 40,000円 | 5ヵ月 | 2025年7月上旬 |
8階 | 17.03坪 | 681,200円 | - | 40,000円 | 5ヵ月 | 2025年7月上旬 |
9階 | 15.34坪 | 690,300円 | - | 45,000円 | 5ヵ月 | 2025年7月上旬 |
10階 | 15.34坪 | 690,300円 | - | 45,000円 | 5ヵ月 | 2025年7月上旬 |
11階 | 14.06坪 | 632,700円 | - | 45,000円 | 5ヵ月 | 2025年7月上旬 |
5秒で簡単資料請求