VORT渋谷eastⅡ物件ID:37291

  • 築浅
  • OAフロア
  • 新耐震基準
  • 個別空調
  • 機械警備
  • 男女別トイレ

賃貸条件

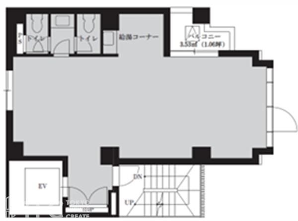
階数
6階
面積
17坪(56.19㎡)
賃料
561,000円
礼金
-
管理費
-
預託金
5ヵ月
償却費
ー 
更新料
新賃料の1ヶ月分 
契約期間
普通借 2年 
入居日
即日 
備考
敷金:店舗10ヶ月
保証会社加入時、償却無
保証会社加入要(VRサポート)
火災保険加入要
看板使用料あり
内装管理費:坪15000円
その他
美容サロン、パーソナルジム等サービス店舖可
カフェ、バー等軽飲食可
※重飲食・物販不可
ガス引き込みあり

※賃料等は税別表示です。

物件情報

物件名
VORT渋谷eastⅡ
住所
東京都渋谷区渋谷1-7-2
竣工
2025年6月
建物規模
鉄骨造 地上 11階建 
主要設備
新耐震 天井高2.5M以上 OAフロア 個別空調 男女別トイレ エレベーター 
特徴
2025年6月竣工予定の地上11階・鉄骨造新築ビル。渋谷駅(JR・東京メトロ・東急・京王)徒歩6分、表参道駅も徒歩8分とアクセス良好です。14~17坪の1フロア1テナント設計で、男女別トイレ・個別空調・ガス設備を完備。青山通り裏手ながら賑わいのあるエリアに立地し、オフィスだけでなくサロンや軽飲食利用にも適した魅力的な物件です。
物件を見学したい、空室情報など
物件のお問い合わせ
0120-486-656 受付時間|平日10:00~19:00
物件ID【37291】をお伝えください
お問い合わせから10分で返信いたしますこの物件を問い合わせる

交通アクセス

  • ・ 渋谷駅 徒歩8分
VORT渋谷eastⅡ 募集中の区画
階数 坪数 賃料 管理費 坪単価 預託金 入居日
3階 17.07坪 563,310円 - 33,000円 5ヵ月 即日 
8階 16.95坪 559,350円 - 33,000円 5ヵ月 即日 
9階 15.26坪 534,100円 - 35,000円 5ヵ月 即日 
5秒で簡単資料請求
お名前
Email
TEL
WEB非公開物件がございます
新宿区を中心に15年以上、たくさんのオーナー様の信頼を勝ち得てきたTFCだからこそ
ご紹介できる"非公開物件"がございます!!
お客様一人ひとりに合ったこだわり条件に誠心誠意お応えいたします。
"渋谷オフィス"の賃貸情報なら、なんでもお任せください!!
ご来店も大歓迎です
安心してお任せいただけるよう、ご来店をおすすめしております。
お客様のご要望を対面にて、是非!お聞かせください!!
現事務所の解約スケジュールや移転時期、内装工事、各種手続きのタイミング、引渡しまで全てTFCがご提案いたします。
渋谷エリアの賃貸不動産は、TFCのエキスパートに是非お任せください!!

近くのエリアで探してみる

エリア
渋谷エリア 渋谷駅周辺
最寄り駅
渋谷

VORT渋谷eastⅡと同等の坪数の物件

VORT渋谷eastⅡと同等の賃料の物件

LINEで最新情報を配信中
気軽に相談可能です