パティオクワトロ物件ID:32278




- 個別空調
- 新耐震基準
- 機械警備
- 男女別トイレ
賃貸条件
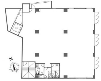
- 階数
- 1階
- 面積
- 70坪(231.39㎡)
- 賃料
- 2,240,000円
- 礼金
- 1ヵ月
- 管理費
- -
- 預託金
- 6ヵ月
- 償却費
- 2ヶ月分
- 更新料
- ー
- 契約期間
- 定借 3年
- 入居日
- 即日
- 備考
- 火災保険要加入
保証会社要加入(月額固定費1ヶ月分) - その他
- 飲食不可
エレベーター1基
タイルカーペット
隠れ家商業ビル
※賃料等は税別表示です。
物件情報
- 物件名
- パティオクワトロ
- 住所
- 東京都渋谷区恵比寿4-5-27
- 竣工
- 2015年4月
- 建物規模
- 鉄筋コンクリート造 地下 2階 地上2 階建
- 主要設備
- 個別空調 エレベーター 駅近 OAフロア 給湯
- 特徴
- パティオクワトロ(渋谷区恵比寿)は、少し変わった高級感のあるオシャレなエントランスが特徴的です。
1階は店舗区画、2階以上のオフィスフロアはエレベーターダイレクトイン設計。
恵比寿駅に近いのでコンビニ、飲食店、郵便局など近隣店舗は充実しているにも関わらず、落ち着いた静かな立地の物件です。
物件を見学したい、空室情報など
物件のお問い合わせ
物件のお問い合わせ
0120-486-656 受付時間|平日10:00~19:00
物件ID【32278】をお伝えください
お問い合わせから10分で返信いたしますこの物件を問い合わせる 交通アクセス
- ・ 恵比寿駅 徒歩3分
パティオクワトロ 募集中の区画
階数 | 坪数 | 賃料 | 管理費 | 坪単価 | 預託金 | 入居日 |
---|---|---|---|---|---|---|
3階部分 | 70坪 | 2,387,000円 | - | 34,000円 | - | 即日 |
5秒で簡単資料請求