明治安田生命備後町ビル物件ID:45390

  • 駅近
  • 新耐震基準
  • 24時間使用可
  • OAフロア
  • 機械警備
  • 男女別トイレ
  • EV2機以上
  • 駐車場付

賃貸条件

階数
6階
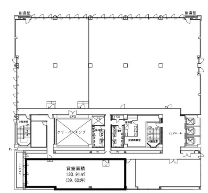
面積
39.6坪(130.9㎡)
賃料
514,800円
礼金
-
管理費
-
預託金
12ヵ月
償却費
ー 
更新料
ー 
契約期間
定借 年相談 
入居日
2026年7月
備考
火災保険・保証会社加入必須
その他
機械式駐車場(空き要確認)

※賃料等は税別表示です。

物件情報

物件名
明治安田生命備後町ビル
住所
大阪府大阪市中央区備後町1-6-15
竣工
1982年5月
建物規模
SRC造 地上 9階建 
主要設備
新耐震 駅近 エレベーター2基以上 24時間利用可 機械警備 駐車場 OAフロア 男女別トイレ 
特徴
1階にカフェが入居中のオフィスビルです。
物件を見学したい、空室情報など
物件のお問い合わせ
0120-661-755 受付時間|平日10:00~19:00
物件ID【45390】をお伝えください
お問い合わせから10分で返信いたしますこの物件を問い合わせる

交通アクセス

  • ・ 天満橋駅 徒歩0分
  • ・ 北浜駅 徒歩0分
  • ・ 淀屋橋駅 徒歩0分
明治安田生命備後町ビル 募集中の区画
階数 坪数 賃料 管理費 坪単価 預託金 入居日
7階 8.86坪 115,180円 - 13,000円 12ヵ月 2026年7月
5秒で簡単資料請求
お名前
Email
TEL
WEB非公開物件がございます
たくさんのオフィス物件が公開されている中で流通する物件は極僅か。
なかには解約予告前に相談に来る物件や、解約時の原状回復前に居抜きなどでお引渡しできる物件もございます。
"大阪オフィス"の賃貸情報なら、なんでもお任せください!!
ご来店も大歓迎です
ご来店や御社事務所にて対面でのお打ち合わせをおススメしております。
お客様のご要望を是非お聞かせください!
現事務所の解約スケジュールや移転時期、内装工事、各種手続きのタイミング、引渡しまで全てTFCがご提案いたします。
大阪の賃貸不動産は、TFCのエキスパートにお任せください!!

近くのエリアで探してみる

エリア
大阪エリア 淀屋橋・北浜
最寄り駅
天満橋  / 北浜  / 淀屋橋  / なにわ橋  / 大江橋  / 本町  / 堺筋本町  / 松屋町

明治安田生命備後町ビルと同等の坪数の物件

明治安田生命備後町ビルと同等の賃料の物件

LINEで最新情報を配信中
気軽に相談可能です