MF桜橋2ビル物件ID:44921

  • 駅近
  • 新耐震基準
  • OAフロア
  • 個別空調
  • 機械警備
  • 男女別トイレ
  • 駐車場付

賃貸条件

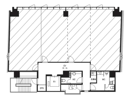
階数
6階ABCD
面積
50.29坪(166.24㎡)
賃料
804,640円
礼金
-
管理費
201,160円
預託金
4,903,275円
償却費
ー 
更新料
ー 
契約期間
定借 2年 
入居日
相談 
備考
保証会社要加入
保証金半額プラン適用
定借5年プラン有(賃条件は詳細画像に掲載中)
外国籍の個人契約可能(国内在住及び印鑑証明書必須)
その他
駐車場空要確認
築浅・地震に強い免震構造採用
断熱性の高いペアガラス採用
機械警備・管理人常駐のダブル警備
採光良好
国道2号線に面す

※賃料等は税別表示です。

物件情報

物件名
MF桜橋2ビル
住所
大阪府大阪市北区曾根崎新地2-6-5
竣工
2015年2月
建物規模
鉄筋コンクリート造 地上11階建
主要設備
男女別トイレ 個別空調 有人警備 機械警備 エレベーター 24時間利用可 OAフロア 駐車場 新耐震 駅近 
特徴
物件を見学したい、空室情報など
物件のお問い合わせ
0120-661-755 受付時間|平日10:00~19:00
物件ID【44921】をお伝えください
お問い合わせから10分で返信いたしますこの物件を問い合わせる

交通アクセス

  • ・ 北新地駅 徒歩4分
  • ・ 梅田駅 徒歩6分
  • ・ 大阪駅 徒歩7分
MF桜橋2ビル 募集中の区画
階数 坪数 賃料 管理費 坪単価 預託金 入居日
11階CD 24.17坪 386,720円 91,846円 19,700円 2,356,575円 即日 
5秒で簡単資料請求
お名前
Email
TEL
WEB非公開物件がございます
たくさんのオフィス物件が公開されている中で流通する物件は極僅か。
なかには解約予告前に相談に来る物件や、解約時の原状回復前に居抜きなどでお引渡しできる物件もございます。
"大阪オフィス"の賃貸情報なら、なんでもお任せください!!
ご来店も大歓迎です
ご来店や御社事務所にて対面でのお打ち合わせをおススメしております。
お客様のご要望を是非お聞かせください!
現事務所の解約スケジュールや移転時期、内装工事、各種手続きのタイミング、引渡しまで全てTFCがご提案いたします。
大阪の賃貸不動産は、TFCのエキスパートにお任せください!!

近くのエリアで探してみる

エリア
大阪エリア 梅田
最寄り駅
北新地  / 梅田  / 大阪  / 大阪梅田

MF桜橋2ビルと同等の坪数の物件

MF桜橋2ビルと同等の賃料の物件

LINEで最新情報を配信中
気軽に相談可能です