浦西ビル物件ID:44752

  • 新耐震基準
  • 24時間使用可

賃貸条件

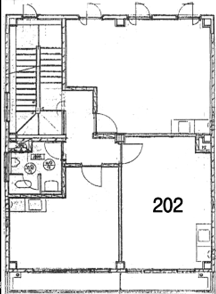
階数
2階202
面積
5.88坪(19.43㎡)
賃料
35,000円
礼金
150,000円
管理費
-
預託金
-
償却費
ー 
更新料
相談 
契約期間
普通借 2年 
入居日
即日 
備考
保険・保証会社要加入
鍵交換料:22,000円(契約時)

※賃料等は税別表示です。

物件情報

物件名
浦西ビル
住所
大阪府大阪市北区天満1-21-13
竣工
1986年5月
建物規模
鉄骨造陸屋根 地上 4階建 
主要設備
ガス 新耐震 
特徴
物件を見学したい、空室情報など
物件のお問い合わせ
0120-661-755 受付時間|平日10:00~19:00
物件ID【44752】をお伝えください
お問い合わせから10分で返信いたしますこの物件を問い合わせる

交通アクセス

  • ・ 天満橋駅 徒歩8分
浦西ビル 募集中の区画
階数 坪数 賃料 管理費 坪単価 預託金 入居日
2階203 4.82坪 35,000円 - 7,200円 - 即日 
5秒で簡単資料請求
お名前
Email
TEL
WEB非公開物件がございます
たくさんのオフィス物件が公開されている中で流通する物件は極僅か。
なかには解約予告前に相談に来る物件や、解約時の原状回復前に居抜きなどでお引渡しできる物件もございます。
"大阪オフィス"の賃貸情報なら、なんでもお任せください!!
ご来店も大歓迎です
ご来店や御社事務所にて対面でのお打ち合わせをおススメしております。
お客様のご要望を是非お聞かせください!
現事務所の解約スケジュールや移転時期、内装工事、各種手続きのタイミング、引渡しまで全てTFCがご提案いたします。
大阪の賃貸不動産は、TFCのエキスパートにお任せください!!

近くのエリアで探してみる

エリア
大阪エリア 南森町
最寄り駅
天満橋

浦西ビルと同等の坪数の物件

浦西ビルと同等の賃料の物件

LINEで最新情報を配信中
気軽に相談可能です