ディライト北浜ビル物件ID:43951

  • 駅近
  • 新耐震基準
  • 24時間使用可
  • OAフロア
  • 個別空調
  • 機械警備
  • 男女別トイレ
  • EV2機以上
  • 駐車場付

賃貸条件

階数
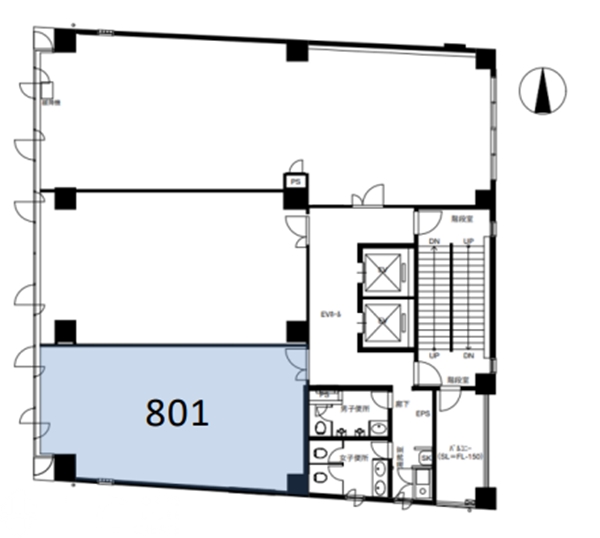
8階801
面積
16.95坪(56.03㎡)
賃料
254,250円
礼金
-
管理費
-
預託金
6ヵ月
償却費
ー 
更新料
ー 
契約期間
普通借 2年 
入居日
2026年5月1日
備考
駐車場:30000円/敷金1ヵ月
火災保険加入必須
保証会社加入必須
解約予告6ヵ月
館銘板作成費用:23000円
その他
入居テナント様専用ラウンジ有り
喫煙所あり
インターネット:MDF まで引込済み

※賃料等は税別表示です。

物件情報

物件名
ディライト北浜ビル
住所
大阪府大阪市中央区道修町1-3-1
竣工
1990年8月
建物規模
鉄骨鉄筋コンクリート造 鉄筋コンクリート造 地上9 階建 
主要設備
エレベーター2基以上 OAフロア 個別空調 機械警備 男女別トイレ 給湯 駅近 新耐震 24時間利用可 
特徴
物件を見学したい、空室情報など
物件のお問い合わせ
0120-661-755 受付時間|平日10:00~19:00
物件ID【43951】をお伝えください
お問い合わせから10分で返信いたしますこの物件を問い合わせる

交通アクセス

  • ・ 北浜駅 徒歩4分
5秒で簡単資料請求
お名前
Email
TEL
WEB非公開物件がございます
たくさんのオフィス物件が公開されている中で流通する物件は極僅か。
なかには解約予告前に相談に来る物件や、解約時の原状回復前に居抜きなどでお引渡しできる物件もございます。
"大阪オフィス"の賃貸情報なら、なんでもお任せください!!
ご来店も大歓迎です
ご来店や御社事務所にて対面でのお打ち合わせをおススメしております。
お客様のご要望を是非お聞かせください!
現事務所の解約スケジュールや移転時期、内装工事、各種手続きのタイミング、引渡しまで全てTFCがご提案いたします。
大阪の賃貸不動産は、TFCのエキスパートにお任せください!!

近くのエリアで探してみる

エリア
大阪エリア 淀屋橋・北浜
最寄り駅
北浜

ディライト北浜ビルと同等の坪数の物件

ディライト北浜ビルと同等の賃料の物件

LINEで最新情報を配信中
気軽に相談可能です