心斎橋プラチナプラザ物件ID:43875

  • 駅近
  • 新耐震基準
  • 24時間使用可
  • 個別空調
  • 機械警備

賃貸条件

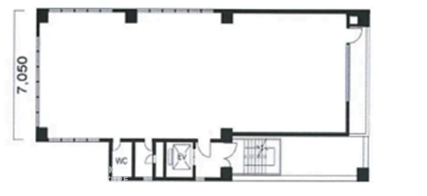
階数
2階
面積
38.05坪(125.78㎡)
賃料
494,650円
礼金
-
管理費
-
預託金
2,967,900円
償却費
5年未満40% 10年未満30% 10年以上20%
更新料
相談 
契約期間
相談 
入居日
即日 
備考
袖看板設置は別費用
その他
床:タイルカーペット
天井高:2,480mm

※賃料等は税別表示です。

物件情報

物件名
心斎橋プラチナプラザ
住所
大阪府大阪市中央区南船場3-9-1
竣工
1990年8月
建物規模
鉄骨鉄筋コンクリート造 地上 9階建 
主要設備
新耐震 機械警備 24時間利用可 エレベーター 駅近 光ファイバー 個別空調 
特徴
物件を見学したい、空室情報など
物件のお問い合わせ
0120-661-755 受付時間|平日10:00~19:00
物件ID【43875】をお伝えください
お問い合わせから10分で返信いたしますこの物件を問い合わせる

交通アクセス

  • ・ 心斎橋駅 徒歩3分
  • ・ 四ツ橋駅 徒歩7分
  • ・ 長堀橋駅 徒歩7分
心斎橋プラチナプラザ 募集中の区画
階数 坪数 賃料 管理費 坪単価 預託金 入居日
B1階 36.05坪 901,250円 - 25,000円 5,407,500円 相談 
5秒で簡単資料請求
お名前
Email
TEL
WEB非公開物件がございます
たくさんのオフィス物件が公開されている中で流通する物件は極僅か。
なかには解約予告前に相談に来る物件や、解約時の原状回復前に居抜きなどでお引渡しできる物件もございます。
"大阪オフィス"の賃貸情報なら、なんでもお任せください!!
ご来店も大歓迎です
ご来店や御社事務所にて対面でのお打ち合わせをおススメしております。
お客様のご要望を是非お聞かせください!
現事務所の解約スケジュールや移転時期、内装工事、各種手続きのタイミング、引渡しまで全てTFCがご提案いたします。
大阪の賃貸不動産は、TFCのエキスパートにお任せください!!

近くのエリアで探してみる

エリア
大阪エリア 本町
最寄り駅
心斎橋  / 四ツ橋  / 長堀橋

心斎橋プラチナプラザの最寄りの物件

心斎橋プラチナプラザと同等の坪数の物件

心斎橋プラチナプラザと同等の賃料の物件

LINEで最新情報を配信中
気軽に相談可能です