東梅田ビル物件ID:43458

  • 駅近
  • 個別空調

賃貸条件

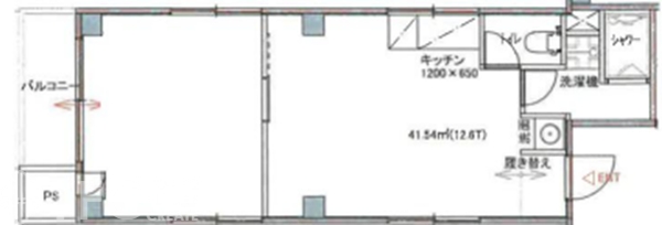
階数
7階701
面積
12.57坪(41.55㎡)
賃料
171,000円
礼金
2ヵ月
管理費
10,000円
預託金
6ヵ月
償却費
ー 
更新料
相談 
契約期間
相談 
入居日
即日 
備考
賃貸保証会社加入
その他

※賃料等は税別表示です。

物件情報

物件名
東梅田ビル
住所
大阪府大阪市北区天神橋4-7-11
竣工
1998年3月
建物規模
鉄筋造陸屋根 地上7 階建 
主要設備
エレベーター 駅近 
特徴
物件を見学したい、空室情報など
物件のお問い合わせ
0120-661-755 受付時間|平日10:00~19:00
物件ID【43458】をお伝えください
お問い合わせから10分で返信いたしますこの物件を問い合わせる

交通アクセス

  • ・ 扇町駅 徒歩1分
  • ・ 天満駅 徒歩2分
5秒で簡単資料請求
お名前
Email
TEL
WEB非公開物件がございます
たくさんのオフィス物件が公開されている中で流通する物件は極僅か。
なかには解約予告前に相談に来る物件や、解約時の原状回復前に居抜きなどでお引渡しできる物件もございます。
"大阪オフィス"の賃貸情報なら、なんでもお任せください!!
ご来店も大歓迎です
ご来店や御社事務所にて対面でのお打ち合わせをおススメしております。
お客様のご要望を是非お聞かせください!
現事務所の解約スケジュールや移転時期、内装工事、各種手続きのタイミング、引渡しまで全てTFCがご提案いたします。
大阪の賃貸不動産は、TFCのエキスパートにお任せください!!

近くのエリアで探してみる

エリア
大阪エリア 天神橋六丁目
最寄り駅
扇町  / 天満

東梅田ビルの最寄りの物件

東梅田ビルと同等の坪数の物件

東梅田ビルと同等の賃料の物件

LINEで最新情報を配信中
気軽に相談可能です