レイビビル物件ID:43379

  • OAフロア
  • 個別空調
  • 機械警備

賃貸条件

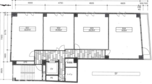
階数
5階502
面積
7.85坪(25.94㎡)
賃料
78,500円
礼金
-
管理費
3,000円
預託金
-
償却費
ー 
更新料
ー 
契約期間
相談 
入居日
相談 
備考
火災保険要加入
保証会社要加入
短期解約違約金有
その他
人気ビジネスエリア「淀屋橋」

※賃料等は税別表示です。

物件情報

物件名
レイビビル
住所
大阪府大阪市中央区平野町4-6-9
竣工
1986年3月
建物規模
鉄筋コンクリート造 陸屋根 地上 7階建 
主要設備
OAフロア 個別空調 機械警備 エレベーター 給湯 
特徴
物件を見学したい、空室情報など
物件のお問い合わせ
0120-661-755 受付時間|平日10:00~19:00
物件ID【43379】をお伝えください
お問い合わせから10分で返信いたしますこの物件を問い合わせる

交通アクセス

  • ・ 淀屋橋駅 徒歩5分
  • ・ 肥後橋駅 徒歩5分
5秒で簡単資料請求
お名前
Email
TEL
WEB非公開物件がございます
たくさんのオフィス物件が公開されている中で流通する物件は極僅か。
なかには解約予告前に相談に来る物件や、解約時の原状回復前に居抜きなどでお引渡しできる物件もございます。
"大阪オフィス"の賃貸情報なら、なんでもお任せください!!
ご来店も大歓迎です
ご来店や御社事務所にて対面でのお打ち合わせをおススメしております。
お客様のご要望を是非お聞かせください!
現事務所の解約スケジュールや移転時期、内装工事、各種手続きのタイミング、引渡しまで全てTFCがご提案いたします。
大阪の賃貸不動産は、TFCのエキスパートにお任せください!!

近くのエリアで探してみる

エリア
大阪エリア 淀屋橋・北浜
最寄り駅
淀屋橋  / 肥後橋

レイビビルと同等の坪数の物件

レイビビルと同等の賃料の物件

LINEで最新情報を配信中
気軽に相談可能です