本町コラボビル物件ID:43370

賃貸条件

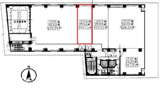
階数
2階204
面積
15.04坪(49.71㎡)
賃料
応相談
礼金
-
管理費
-
預託金
10ヵ月
償却費
ー 
更新料
相談 
契約期間
相談 
入居日
2026年1月1日
備考
駐車場あり(32台)
正面玄関通用口、平日・土曜:8時-20時、日・祝:閉※時間外はカードで通用口より24時間入退館
その他
2018年12月末、外壁・エントランス・共用部・トイレ全面リニューアル完了済
2024年12月末、エレベーター更新
有効天井高2350mm
OAフロア50mm

※賃料等は税別表示です。

物件情報

物件名
本町コラボビル
住所
大阪市中央区北久宝寺町4-4-2
竣工
1986年11月
建物規模
鉄骨鉄筋コンクリート造 地上9階建
主要設備
男女別トイレ 個別空調 機械警備 エレベーター2基以上 24時間利用可 OAフロア 駐車場 駅近 新耐震 
特徴
物件を見学したい、空室情報など
物件のお問い合わせ
0120-661-755 受付時間|平日10:00~19:00
物件ID【43370】をお伝えください
お問い合わせから10分で返信いたしますこの物件を問い合わせる

交通アクセス

  • ・ 本町駅 徒歩3分
  • ・ 心斎橋駅 徒歩11分
  • ・ 堺筋本町駅 徒歩11分
本町コラボビル 募集中の区画
階数 坪数 賃料 管理費 坪単価 預託金 入居日
4階B 29.62坪 応相談 - - 10ヵ月 即日 
5秒で簡単資料請求
お名前
Email
TEL
WEB非公開物件がございます
たくさんのオフィス物件が公開されている中で流通する物件は極僅か。
なかには解約予告前に相談に来る物件や、解約時の原状回復前に居抜きなどでお引渡しできる物件もございます。
"大阪オフィス"の賃貸情報なら、なんでもお任せください!!
ご来店も大歓迎です
ご来店や御社事務所にて対面でのお打ち合わせをおススメしております。
お客様のご要望を是非お聞かせください!
現事務所の解約スケジュールや移転時期、内装工事、各種手続きのタイミング、引渡しまで全てTFCがご提案いたします。
大阪の賃貸不動産は、TFCのエキスパートにお任せください!!

近くのエリアで探してみる

エリア
大阪エリア 本町
最寄り駅
本町  / 心斎橋  / 堺筋本町

本町コラボビルと同等の坪数の物件

本町コラボビルと同等の賃料の物件

LINEで最新情報を配信中
気軽に相談可能です