南船場M21物件ID:43315

  • 駅近
  • 新耐震基準
  • 24時間使用可
  • OAフロア
  • 個別空調
  • 機械警備
  • 男女別トイレ

賃貸条件

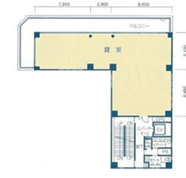
階数
7階
面積
46.14坪(152.52㎡)
賃料
応相談
礼金
-
管理費
-
預託金
10ヵ月
償却費
ー 
更新料
ー 
契約期間
相談 
入居日
即日 
その他
正面玄関:平日(7:30~20:00)、土曜(8:00~18:00)、日曜・祝日閉館
時間外はカードで入館
駐輪場・駐車場あり

※賃料等は税別表示です。

物件情報

物件名
南船場M21
住所
大阪府大阪市中央区南船場1-10-20
竣工
2000年1月
建物規模
鉄筋コンクリート造 地下 1階 塔屋2階 地上 9階建 
主要設備
個別空調 機械警備 エレベーター 24時間利用可 OAフロア 男女別トイレ 駅近 新耐震 
特徴
物件を見学したい、空室情報など
物件のお問い合わせ
0120-661-755 受付時間|平日10:00~19:00
物件ID【43315】をお伝えください
お問い合わせから10分で返信いたしますこの物件を問い合わせる

交通アクセス

  • ・ 長堀橋駅 徒歩3分
南船場M21 募集中の区画
階数 坪数 賃料 管理費 坪単価 預託金 入居日
4階西 38.15坪 応相談 - - 10ヵ月 即日 
5秒で簡単資料請求
お名前
Email
TEL
WEB非公開物件がございます
たくさんのオフィス物件が公開されている中で流通する物件は極僅か。
なかには解約予告前に相談に来る物件や、解約時の原状回復前に居抜きなどでお引渡しできる物件もございます。
"大阪オフィス"の賃貸情報なら、なんでもお任せください!!
ご来店も大歓迎です
ご来店や御社事務所にて対面でのお打ち合わせをおススメしております。
お客様のご要望を是非お聞かせください!
現事務所の解約スケジュールや移転時期、内装工事、各種手続きのタイミング、引渡しまで全てTFCがご提案いたします。
大阪の賃貸不動産は、TFCのエキスパートにお任せください!!

近くのエリアで探してみる

エリア
大阪エリア 本町
最寄り駅
長堀橋

南船場M21と同等の坪数の物件

南船場M21と同等の賃料の物件

LINEで最新情報を配信中
気軽に相談可能です