セントピア堺筋本町ビル物件ID:42949

  • 駅近
  • 24時間使用可
  • 機械警備

賃貸条件

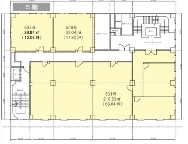
階数
5階501号
面積
66.04坪(218.3㎡)
賃料
594,360円
礼金
-
管理費
-
預託金
10ヵ月
償却費
3ヶ月分 
更新料
相談 
契約期間
定借 2-3年 
入居日
即日 
備考
塾などの来店型店舗相談可能
指定火災保険要加入
指定家賃保証会社加入相談
警備料5000円/月 
ゴミ処理代5000円
その他
セントラル空調
光ファイバー
エレベーター
堺筋沿いの角地に立地しており視認性良好

※賃料等は税別表示です。

物件情報

物件名
セントピア堺筋本町ビル
住所
大阪府大阪市中央区南本町2-1-3
竣工
1952年1月
建物規模
鉄筋コンクリート造 地下 1階 地上 8階建 
主要設備
機械警備 光ファイバー エレベーター 男女別トイレ 24時間利用可 駅近 
特徴
物件を見学したい、空室情報など
物件のお問い合わせ
0120-661-755 受付時間|平日10:00~19:00
物件ID【42949】をお伝えください
お問い合わせから10分で返信いたしますこの物件を問い合わせる

交通アクセス

  • ・ 堺筋本町駅 徒歩1分
セントピア堺筋本町ビル 募集中の区画
階数 坪数 賃料 管理費 坪単価 預託金 入居日
4階401号 107.6坪 968,400円 - 9,000円 10ヵ月 即日 
5階506号室 11.8坪 106,200円 - 8,900円 10ヵ月 即日 
5階507号室 12.8坪 115,200円 - 8,900円 10ヵ月 即日 
5秒で簡単資料請求
お名前
Email
TEL
WEB非公開物件がございます
たくさんのオフィス物件が公開されている中で流通する物件は極僅か。
なかには解約予告前に相談に来る物件や、解約時の原状回復前に居抜きなどでお引渡しできる物件もございます。
"大阪オフィス"の賃貸情報なら、なんでもお任せください!!
ご来店も大歓迎です
ご来店や御社事務所にて対面でのお打ち合わせをおススメしております。
お客様のご要望を是非お聞かせください!
現事務所の解約スケジュールや移転時期、内装工事、各種手続きのタイミング、引渡しまで全てTFCがご提案いたします。
大阪の賃貸不動産は、TFCのエキスパートにお任せください!!

近くのエリアで探してみる

エリア
大阪エリア 本町
最寄り駅
堺筋本町

セントピア堺筋本町ビルと同等の坪数の物件

セントピア堺筋本町ビルと同等の賃料の物件

LINEで最新情報を配信中
気軽に相談可能です