江戸堀フコク生命ビル物件ID:42854

  • 24時間使用可
  • OAフロア
  • 機械警備
  • 男女別トイレ
  • EV2機以上
  • 駐車場付

賃貸条件

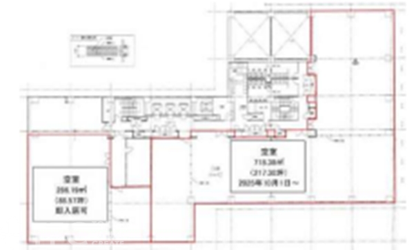
階数
7階
面積
217.3坪(718.32㎡)
賃料
2,824,900円
礼金
-
管理費
-
預託金
12ヵ月
償却費
ー 
更新料
相談 
契約期間
相談 
入居日
即日 
備考
解約予告6ヵ月前
原状回復義務有
その他

※賃料等は税別表示です。

物件情報

物件名
江戸堀フコク生命ビル
住所
大阪府大阪市西区江戸堀2-6-33
竣工
建物規模
鉄筋コンクリート造 地下1 階 地上 10階建 
主要設備
エレベーター2基以上 光ファイバー OAフロア 駐車場 24時間利用可 男女別トイレ 
特徴
物件を見学したい、空室情報など
物件のお問い合わせ
0120-661-755 受付時間|平日10:00~19:00
物件ID【42854】をお伝えください
お問い合わせから10分で返信いたしますこの物件を問い合わせる

交通アクセス

  • ・ 肥後橋駅 徒歩8分
江戸堀フコク生命ビル 募集中の区画
階数 坪数 賃料 管理費 坪単価 預託金 入居日
10階 54.47坪 708,110円 - 13,000円 12ヵ月 即日 
7階 86.57坪 1,125,410円 - 13,000円 12ヵ月 即日 
5秒で簡単資料請求
お名前
Email
TEL
WEB非公開物件がございます
たくさんのオフィス物件が公開されている中で流通する物件は極僅か。
なかには解約予告前に相談に来る物件や、解約時の原状回復前に居抜きなどでお引渡しできる物件もございます。
"大阪オフィス"の賃貸情報なら、なんでもお任せください!!
ご来店も大歓迎です
ご来店や御社事務所にて対面でのお打ち合わせをおススメしております。
お客様のご要望を是非お聞かせください!
現事務所の解約スケジュールや移転時期、内装工事、各種手続きのタイミング、引渡しまで全てTFCがご提案いたします。
大阪の賃貸不動産は、TFCのエキスパートにお任せください!!

近くのエリアで探してみる

エリア
大阪エリア 淀屋橋・北浜
最寄り駅
肥後橋

江戸堀フコク生命ビルと同等の坪数の物件

江戸堀フコク生命ビルと同等の賃料の物件

LINEで最新情報を配信中
気軽に相談可能です