日宝内平野町ビル物件ID:42752

  • 駅近
  • 個別空調

賃貸条件

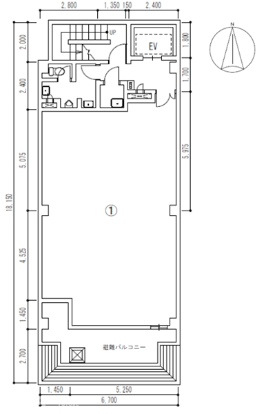
階数
7階1号
面積
22.27坪(73.61㎡)
賃料
112,000円
礼金
200,000円
管理費
21,000円
預託金
100,000円
償却費
ー 
更新料
相談 
契約期間
相談 
入居日
相談 
備考
警備料:6050円
解約予告1ヶ月前
管理費等:電気基本料
※管理費は業種業態に応じて変更
火災保険加入要
水道光熱費:借主負担
看板製作費:借主負担
その他
ガス給湯室
エレベーター
日祝使用可能
シャッター開閉時間:7時~22時

※賃料等は税別表示です。

物件情報

物件名
日宝内平野町ビル
住所
大阪府大阪市中央区内平野町1-5-5
竣工
1985年3月
建物規模
鉄骨造 地上8階建 
主要設備
給湯 ガス 個別空調 エレベーター 駅近 
特徴
物件を見学したい、空室情報など
物件のお問い合わせ
0120-661-755 受付時間|平日10:00~19:00
物件ID【42752】をお伝えください
お問い合わせから10分で返信いたしますこの物件を問い合わせる

交通アクセス

  • ・ 天満橋駅 徒歩4分
日宝内平野町ビル 募集中の区画
階数 坪数 賃料 管理費 坪単価 預託金 入居日
3階1号室 27.37坪 155,000円 22,000円 6,400円 200,000円 相談 
5秒で簡単資料請求
お名前
Email
TEL
WEB非公開物件がございます
たくさんのオフィス物件が公開されている中で流通する物件は極僅か。
なかには解約予告前に相談に来る物件や、解約時の原状回復前に居抜きなどでお引渡しできる物件もございます。
"大阪オフィス"の賃貸情報なら、なんでもお任せください!!
ご来店も大歓迎です
ご来店や御社事務所にて対面でのお打ち合わせをおススメしております。
お客様のご要望を是非お聞かせください!
現事務所の解約スケジュールや移転時期、内装工事、各種手続きのタイミング、引渡しまで全てTFCがご提案いたします。
大阪の賃貸不動産は、TFCのエキスパートにお任せください!!

近くのエリアで探してみる

エリア
大阪エリア 天満橋・谷町
最寄り駅
天満橋

日宝内平野町ビルと同等の坪数の物件

日宝内平野町ビルと同等の賃料の物件

LINEで最新情報を配信中
気軽に相談可能です