与力町パーク物件ID:42643

  • 駅近
  • 24時間使用可
  • OAフロア
  • 個別空調
  • 男女別トイレ
  • 駐車場付

賃貸条件

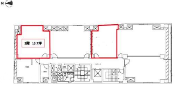
階数
3階
面積
13.7坪(45.28㎡)
賃料
137,000円
礼金
-
管理費
41,100円
預託金
6ヵ月
償却費
20% 
更新料
ー 
契約期間
相談 
入居日
2026年2月上旬
備考
解約予告6か月前
原状回復:自然損耗及び経年劣化は貸主負担
その他
光ファイバー引き込み可
ウォシュレット

※賃料等は税別表示です。

物件情報

物件名
与力町パーク
住所
大阪府大阪市北区与力町1-5
竣工
1972年3月
建物規模
鉄筋コンクリート造 地上 8階建 地下 1階 
主要設備
個別空調 エレベーター 光ファイバー OAフロア 駐車場 24時間利用可 男女別トイレ 
特徴
物件を見学したい、空室情報など
物件のお問い合わせ
0120-661-755 受付時間|平日10:00~19:00
物件ID【42643】をお伝えください
お問い合わせから10分で返信いたしますこの物件を問い合わせる

交通アクセス

  • ・ 大阪天満宮駅 徒歩5分
  • ・ 南森町駅 徒歩6分
5秒で簡単資料請求
お名前
Email
TEL
WEB非公開物件がございます
たくさんのオフィス物件が公開されている中で流通する物件は極僅か。
なかには解約予告前に相談に来る物件や、解約時の原状回復前に居抜きなどでお引渡しできる物件もございます。
"大阪オフィス"の賃貸情報なら、なんでもお任せください!!
ご来店も大歓迎です
ご来店や御社事務所にて対面でのお打ち合わせをおススメしております。
お客様のご要望を是非お聞かせください!
現事務所の解約スケジュールや移転時期、内装工事、各種手続きのタイミング、引渡しまで全てTFCがご提案いたします。
大阪の賃貸不動産は、TFCのエキスパートにお任せください!!

近くのエリアで探してみる

エリア
大阪エリア 南森町
最寄り駅
大阪天満宮  / 南森町

与力町パークと同等の坪数の物件

与力町パークと同等の賃料の物件

LINEで最新情報を配信中
気軽に相談可能です