オーセンティック淀屋橋ビル物件ID:42524

  • 駅近
  • 24時間使用可
  • 個別空調

賃貸条件

階数
402号室
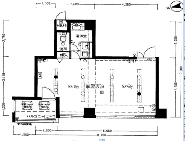
面積
12.54坪(41.45㎡)
賃料
140,000円
礼金
334,400円
管理費
12,000円
預託金
3ヵ月
償却費
ー 
更新料
相談 
契約期間
相談 
入居日
相談:2025年12月末退去予定
備考
火災保険加入要
保証会社加入要
鍵交換:任意 (借主実費負担)
ごみ処理代と水道料金は管理組合に別契約が必要
解約通知:3ヶ月前書面
短期解約違約金有:1年未満解約総賃料の2ヶ月分、2年以内解約総賃料1ヶ月分
その他
事務所に人気のエリア
電気・上下水道・都市ガス
エレベーター
保証人なし相談可能
外国人積相談可能
※現況優先

※賃料等は税別表示です。

物件情報

物件名
オーセンティック淀屋橋ビル
住所
大阪府大阪市中央区平野町3-1-10
竣工
1986年7月
建物規模
鉄骨鉄筋コンクリート造 鉄筋コンクリート造 地上 11階建 
主要設備
エレベーター 個別空調 給湯 24時間利用可 駅近 駐車場 
特徴
物件を見学したい、空室情報など
物件のお問い合わせ
0120-661-755 受付時間|平日10:00~19:00
物件ID【42524】をお伝えください
お問い合わせから10分で返信いたしますこの物件を問い合わせる

交通アクセス

  • ・ 淀屋橋駅 徒歩4分
  • ・ 北浜駅 徒歩6分
5秒で簡単資料請求
お名前
Email
TEL
WEB非公開物件がございます
たくさんのオフィス物件が公開されている中で流通する物件は極僅か。
なかには解約予告前に相談に来る物件や、解約時の原状回復前に居抜きなどでお引渡しできる物件もございます。
"大阪オフィス"の賃貸情報なら、なんでもお任せください!!
ご来店も大歓迎です
ご来店や御社事務所にて対面でのお打ち合わせをおススメしております。
お客様のご要望を是非お聞かせください!
現事務所の解約スケジュールや移転時期、内装工事、各種手続きのタイミング、引渡しまで全てTFCがご提案いたします。
大阪の賃貸不動産は、TFCのエキスパートにお任せください!!

近くのエリアで探してみる

エリア
大阪エリア 淀屋橋・北浜
最寄り駅
淀屋橋  / 北浜

オーセンティック淀屋橋ビルと同等の坪数の物件

オーセンティック淀屋橋ビルと同等の賃料の物件

LINEで最新情報を配信中
気軽に相談可能です