谷四ばんらいビル物件ID:42481

  • 駅近
  • 24時間使用可
  • 個別空調
  • 貸会議室併設
  • 機械警備

賃貸条件

階数
7階
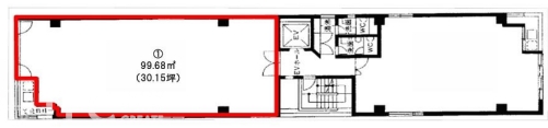
面積
30.15坪(99.66㎡)
賃料
301,500円
礼金
-
管理費
-
預託金
6ヵ月
償却費
1ヶ月分 
更新料
相談
契約期間
相談
入居日
即日 
備考
指定火災保険加入要
指定家賃保証会社加入相談
その他
大通りに面しており視認性良好
無償利用:ビルラウンジ・応接ブース・宅配ボックス
有償利用:貸会議室・シェアサイクル
喫煙室あり

※賃料等は税別表示です。

物件情報

物件名
谷四ばんらいビル
住所
大阪府大阪市中央区内本町1-2-13
竣工
1986年5月
建物規模
鉄骨鉄筋コンクリート造 地上10 階建 
主要設備
個別空調 エレベーター 光ファイバー 有人警備 機械警備 24時間利用可 駅近 
特徴
物件を見学したい、空室情報など
物件のお問い合わせ
0120-661-755 受付時間|平日10:00~19:00
物件ID【42481】をお伝えください
お問い合わせから10分で返信いたしますこの物件を問い合わせる

交通アクセス

  • ・ 天満橋駅 徒歩0分
  • ・ 谷町四丁目駅 徒歩2分
谷四ばんらいビル 募集中の区画
階数 坪数 賃料 管理費 坪単価 預託金 入居日
9階 30.15坪 301,500円 - 10,000円 6ヵ月 即日 
5秒で簡単資料請求
お名前
Email
TEL
WEB非公開物件がございます
たくさんのオフィス物件が公開されている中で流通する物件は極僅か。
なかには解約予告前に相談に来る物件や、解約時の原状回復前に居抜きなどでお引渡しできる物件もございます。
"大阪オフィス"の賃貸情報なら、なんでもお任せください!!
ご来店も大歓迎です
ご来店や御社事務所にて対面でのお打ち合わせをおススメしております。
お客様のご要望を是非お聞かせください!
現事務所の解約スケジュールや移転時期、内装工事、各種手続きのタイミング、引渡しまで全てTFCがご提案いたします。
大阪の賃貸不動産は、TFCのエキスパートにお任せください!!

近くのエリアで探してみる

エリア
大阪エリア 天満橋・谷町
最寄り駅
天満橋  / 谷町四丁目

谷四ばんらいビルと同等の坪数の物件

谷四ばんらいビルと同等の賃料の物件

LINEで最新情報を配信中
気軽に相談可能です