山五ビル物件ID:42270

  • 機械警備

賃貸条件

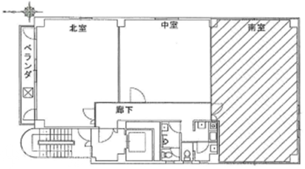
階数
4階南室
面積
22.9坪(75.7㎡)
賃料
206,100円
礼金
680,130円
管理費
45,800円
預託金
618,300円
償却費
ー 
更新料
相談 
契約期間
相談 
入居日
2026年2月初旬
備考
指定家賃保証会社要加入
指定借家人賠償責任特約付火災保険要加入
機械警備費:5500円
その他
駐輪場:1台分無償

※賃料等は税別表示です。

物件情報

物件名
山五ビル
住所
大阪府大阪市西区南堀江1-14-28
竣工
1983年12月
建物規模
鉄骨造陸屋根 地下 1階 地上 10階建 
主要設備
エレベーター 
特徴
物件を見学したい、空室情報など
物件のお問い合わせ
0120-661-755 受付時間|平日10:00~19:00
物件ID【42270】をお伝えください
お問い合わせから10分で返信いたしますこの物件を問い合わせる

交通アクセス

  • ・ 四ツ橋駅 徒歩5分
山五ビル 募集中の区画
階数 坪数 賃料 管理費 坪単価 預託金 入居日
6階 南室 22.9坪 206,100円 45,800円 10,900円 618,300円 即日(契約後引き渡しまでに2週間程度必要) 
6階北室 17.86坪 160,740円 35,720円 11,000円 482,220円 2025年12月上旬
6階中室 12.31坪 110,790円 24,620円 11,000円 332,370円 2025年12月上旬
6階北中セット 30.17坪 271,530円 60,340円 10,900円 814,590円 相談 
5秒で簡単資料請求
お名前
Email
TEL
WEB非公開物件がございます
たくさんのオフィス物件が公開されている中で流通する物件は極僅か。
なかには解約予告前に相談に来る物件や、解約時の原状回復前に居抜きなどでお引渡しできる物件もございます。
"大阪オフィス"の賃貸情報なら、なんでもお任せください!!
ご来店も大歓迎です
ご来店や御社事務所にて対面でのお打ち合わせをおススメしております。
お客様のご要望を是非お聞かせください!
現事務所の解約スケジュールや移転時期、内装工事、各種手続きのタイミング、引渡しまで全てTFCがご提案いたします。
大阪の賃貸不動産は、TFCのエキスパートにお任せください!!

近くのエリアで探してみる

エリア
大阪エリア 心斎橋
最寄り駅
四ツ橋

山五ビルと同等の坪数の物件

山五ビルと同等の賃料の物件

LINEで最新情報を配信中
気軽に相談可能です