リプロ南船場財法ビルⅧ物件ID:41988

  • 駅近
  • 男女別トイレ
  • EV2機以上

賃貸条件

階数
701号室
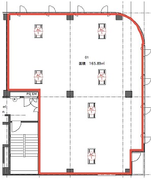
面積
50.18坪(165.88㎡)
賃料
526,890円
礼金
-
管理費
200,720円
預託金
10ヵ月
償却費
4ヶ月分 
更新料
相談 
契約期間
相談 
入居日
2025年末退去予定
備考
保証会社要加入
短期解約違約金あり(月額総賃料の)
1年以内(3か月)2年未満(2ヵ月)3年未満(1ヶ月)
その他
共用給湯室
別階に車いす用トイレあり
24時間セキュリティ
隣地有料駐車場あり

※賃料等は税別表示です。

物件情報

物件名
リプロ南船場財法ビルⅧ
住所
大阪府大阪市中央区南船場1-3-5
竣工
1994年8月
建物規模
鉄骨造 陸屋根 地上 13階建 
主要設備
エレベーター 給湯 
特徴
物件を見学したい、空室情報など
物件のお問い合わせ
0120-661-755 受付時間|平日10:00~19:00
物件ID【41988】をお伝えください
お問い合わせから10分で返信いたしますこの物件を問い合わせる

交通アクセス

  • ・ 長堀橋駅 徒歩7分
5秒で簡単資料請求
お名前
Email
TEL
WEB非公開物件がございます
たくさんのオフィス物件が公開されている中で流通する物件は極僅か。
なかには解約予告前に相談に来る物件や、解約時の原状回復前に居抜きなどでお引渡しできる物件もございます。
"大阪オフィス"の賃貸情報なら、なんでもお任せください!!
ご来店も大歓迎です
ご来店や御社事務所にて対面でのお打ち合わせをおススメしております。
お客様のご要望を是非お聞かせください!
現事務所の解約スケジュールや移転時期、内装工事、各種手続きのタイミング、引渡しまで全てTFCがご提案いたします。
大阪の賃貸不動産は、TFCのエキスパートにお任せください!!

近くのエリアで探してみる

エリア
大阪エリア 本町
最寄り駅
長堀橋

リプロ南船場財法ビルⅧと同等の坪数の物件

リプロ南船場財法ビルⅧと同等の賃料の物件

LINEで最新情報を配信中
気軽に相談可能です