辰野西天満ビル物件ID:41940

  • 駅近
  • 天井高2,500mm以上
  • 個別空調
  • 男女別トイレ
  • EV2機以上
  • 駐車場付

賃貸条件

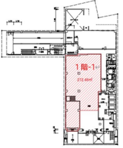
階数
1階-1
面積
99.84坪(330.04㎡)
賃料
1,597,440円
礼金
-
管理費
-
預託金
12ヵ月
償却費
ー 
更新料
ー 
契約期間
定借 10年 
入居日
相談 
その他
飲食不可・給排水引込可
喫煙スペース(屋上)
テナント様専用レンタル自転車あり
駐車場※現在満車
駐輪場※現在満車

※賃料等は税別表示です。

物件情報

物件名
辰野西天満ビル
住所
大阪府大阪市北区西天満3-1-6
竣工
1989年4月
建物規模
鉄骨造 地下 2階 地上 8階建 
主要設備
個別空調 エレベーター2基以上 男女別トイレ 給湯 天井高2.5M以上 機械警備 駐車場 駅近 
特徴
物件を見学したい、空室情報など
物件のお問い合わせ
0120-661-755 受付時間|平日10:00~19:00
物件ID【41940】をお伝えください
お問い合わせから10分で返信いたしますこの物件を問い合わせる

交通アクセス

  • ・ 北浜駅 徒歩4分
  • ・ 南森町駅 徒歩7分
5秒で簡単資料請求
お名前
Email
TEL
WEB非公開物件がございます
たくさんのオフィス物件が公開されている中で流通する物件は極僅か。
なかには解約予告前に相談に来る物件や、解約時の原状回復前に居抜きなどでお引渡しできる物件もございます。
"大阪オフィス"の賃貸情報なら、なんでもお任せください!!
ご来店も大歓迎です
ご来店や御社事務所にて対面でのお打ち合わせをおススメしております。
お客様のご要望を是非お聞かせください!
現事務所の解約スケジュールや移転時期、内装工事、各種手続きのタイミング、引渡しまで全てTFCがご提案いたします。
大阪の賃貸不動産は、TFCのエキスパートにお任せください!!

近くのエリアで探してみる

エリア
大阪エリア 堂島
最寄り駅
北浜  / 南森町

辰野西天満ビルと同等の坪数の物件

辰野西天満ビルと同等の賃料の物件

LINEで最新情報を配信中
気軽に相談可能です