難波御堂筋センタービル物件ID:41471




- 駅近
- 個別空調
- 男女別トイレ
- EV2機以上
- 駐車場付
賃貸条件
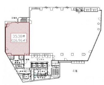
- 階数
- 4階
- 面積
- 35.38坪(116.95㎡)
- 賃料
- 672,220円
- 礼金
- -
- 管理費
- -
- 預託金
- 12ヵ月
- 償却費
- ー
- 更新料
- 相談
- 契約期間
- 定借 3年
- 入居日
- その他
- 開閉時間平日7:00~22:00
土日エントランス開放
有人警備
※賃料等は税別表示です。
物件情報
- 物件名
- 難波御堂筋センタービル
- 住所
- 大阪府大阪市中央区難波4-4-4
- 竣工
- 1992年4月
- 建物規模
- 鉄骨造 地上10 階建 地下 3階
- 主要設備
- 個別空調 エレベーター2基以上 有人警備 駐車場 駅近 新耐震
- 特徴
- -
物件を見学したい、空室情報など
物件のお問い合わせ
物件のお問い合わせ
0120-661-755 受付時間|平日10:00~19:00
物件ID【41471】をお伝えください
お問い合わせから10分で返信いたしますこの物件を問い合わせる 交通アクセス
- ・ なんば駅 徒歩1分
- ・ 大阪難波駅 徒歩3分
5秒で簡単資料請求