キャビン天神橋ビル物件ID:41462

  • 個別空調
  • 男女別トイレ

賃貸条件

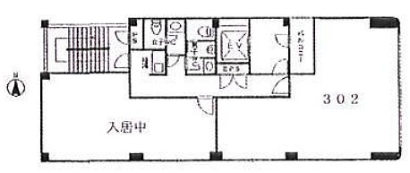
階数
302号室
面積
11.5坪(38.01㎡)
賃料
115,000円
礼金
230,000円
管理費
9,000円
預託金
230,000円
償却費
ー 
更新料
相談 
契約期間
相談 
入居日
2026年1月以降(前倒し相談)
備考
保証会社(フォーシーズ)・火災保険要加入
短期解約違約金設定あり(1年未満の解約は賃料の2ヶ月分)
電気代:基本料金あり(貸主検針)
水道代:月額1500円(税別)
その他
エレベーター

※賃料等は税別表示です。

物件情報

物件名
キャビン天神橋ビル
住所
大阪府大阪市北区天神橋1-12-22
竣工
1989年11月
建物規模
鉄骨造 地上7階建
主要設備
男女別トイレ 個別空調 光ファイバー 機械警備 エレベーター 24時間利用可 新耐震 駅近 
特徴
物件を見学したい、空室情報など
物件のお問い合わせ
0120-661-755 受付時間|平日10:00~19:00
物件ID【41462】をお伝えください
お問い合わせから10分で返信いたしますこの物件を問い合わせる

交通アクセス

  • ・ 大阪天満宮駅 徒歩5分
  • ・ 南森町駅 徒歩5分
5秒で簡単資料請求
お名前
Email
TEL
WEB非公開物件がございます
たくさんのオフィス物件が公開されている中で流通する物件は極僅か。
なかには解約予告前に相談に来る物件や、解約時の原状回復前に居抜きなどでお引渡しできる物件もございます。
"大阪オフィス"の賃貸情報なら、なんでもお任せください!!
ご来店も大歓迎です
ご来店や御社事務所にて対面でのお打ち合わせをおススメしております。
お客様のご要望を是非お聞かせください!
現事務所の解約スケジュールや移転時期、内装工事、各種手続きのタイミング、引渡しまで全てTFCがご提案いたします。
大阪の賃貸不動産は、TFCのエキスパートにお任せください!!

近くのエリアで探してみる

エリア
大阪エリア 南森町
最寄り駅
大阪天満宮  / 南森町

キャビン天神橋ビルと同等の坪数の物件

キャビン天神橋ビルと同等の賃料の物件

LINEで最新情報を配信中
気軽に相談可能です