小倉屋山本本店ビル物件ID:41378


















- 駅近
- 個別空調
- 機械警備
賃貸条件
- 階数
- 7階
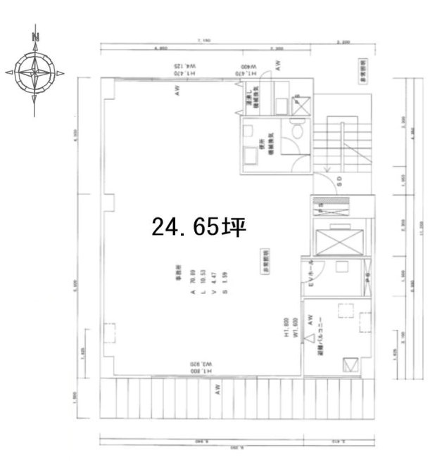
- 面積
- 24.65坪(81.48㎡)
- 賃料
- 221,850円
- 礼金
- -
- 管理費
- 73,950円
- 預託金
- 10ヵ月
- 償却費
- ー
- 更新料
- 相談
- 契約期間
- 相談
- 入居日
- 即日
- 備考
- 保証会社加入必須
解約引き:相談
電気代:検針
水道代:検針
塵芥:直接契約 - その他
- 1階には老舗店舗が入っており、認知度の高いビルです
個別セキュリティ完備
フロアカーペット
給湯室
エレベーター
※美容室不可(水回り工事不可)
※賃料等は税別表示です。
物件情報
- 物件名
- 小倉屋山本本店ビル
- 住所
- 大阪府大阪市中央区南船場4-10-26
- 竣工
- 1986年10月
- 建物規模
- 鉄骨鉄筋コンクリート造 地上 8階建
- 主要設備
- 駅近 個別空調 機械警備 給湯 エレベーター
- 特徴
- -
物件を見学したい、空室情報など
物件のお問い合わせ
物件のお問い合わせ
0120-661-755 受付時間|平日10:00~19:00
物件ID【41378】をお伝えください
お問い合わせから10分で返信いたしますこの物件を問い合わせる 交通アクセス
- ・ 心斎橋駅 徒歩5分
5秒で簡単資料請求