GAZELLE RIO淀屋橋物件ID:41364

  • 24時間使用可
  • OAフロア
  • 個別空調
  • 機械警備

賃貸条件

階数
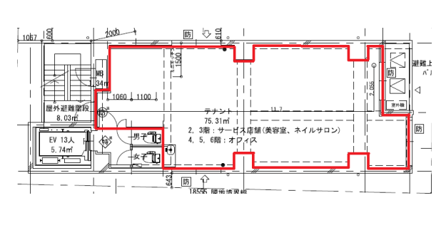
2階
面積
20.99坪(69.38㎡)
賃料
419,800円
礼金
-
管理費
-
預託金
6ヵ月
償却費
ー 
更新料
相談 
契約期間
相談 
入居日
相談 
備考
水道代1650円(税込)/月※業種により実費
引き渡し状態相談可(家具無し、セットアップ等)
ワンフロアワンテナント
保証会社・火災保険要加入
その他
エレベーター1基
ガス設備室内引き込み済
光ファイバーあり
室内給排水設備あり
ミニキッチン
LED照明
エアコン
事務所仕様

※賃料等は税別表示です。

物件情報

物件名
GAZELLE RIO淀屋橋
住所
大阪府大阪市中央区平野町4-7-6
竣工
2025年6月
建物規模
鉄筋コンクリート造 地上 7階建 
主要設備
エレベーター 光ファイバー 機械警備 OAフロア 24時間利用可 給湯 ガス 天井高2.5M以上 個別空調 男女別トイレ 
特徴
物件を見学したい、空室情報など
物件のお問い合わせ
0120-661-755 受付時間|平日10:00~19:00
物件ID【41364】をお伝えください
お問い合わせから10分で返信いたしますこの物件を問い合わせる

交通アクセス

  • ・ 淀屋橋駅 徒歩6分
  • ・ 本町駅 徒歩6分
GAZELLE RIO淀屋橋 募集中の区画
階数 坪数 賃料 管理費 坪単価 預託金 入居日
3階 20.99坪 419,800円 - 20,000円 6ヵ月 相談 
5階 20.99坪 419,800円 - 20,000円 6ヵ月 相談 
5秒で簡単資料請求
お名前
Email
TEL
WEB非公開物件がございます
たくさんのオフィス物件が公開されている中で流通する物件は極僅か。
なかには解約予告前に相談に来る物件や、解約時の原状回復前に居抜きなどでお引渡しできる物件もございます。
"大阪オフィス"の賃貸情報なら、なんでもお任せください!!
ご来店も大歓迎です
ご来店や御社事務所にて対面でのお打ち合わせをおススメしております。
お客様のご要望を是非お聞かせください!
現事務所の解約スケジュールや移転時期、内装工事、各種手続きのタイミング、引渡しまで全てTFCがご提案いたします。
大阪の賃貸不動産は、TFCのエキスパートにお任せください!!

近くのエリアで探してみる

エリア
大阪エリア 淀屋橋・北浜
最寄り駅
淀屋橋  / 本町

GAZELLE RIO淀屋橋と同等の坪数の物件

GAZELLE RIO淀屋橋と同等の賃料の物件

LINEで最新情報を配信中
気軽に相談可能です