郵政福祉心斎橋ビル物件ID:41358
























- 24時間使用可
- 個別空調
- 機械警備
- EV2機以上
- 駐車場付
- 駅近
賃貸条件
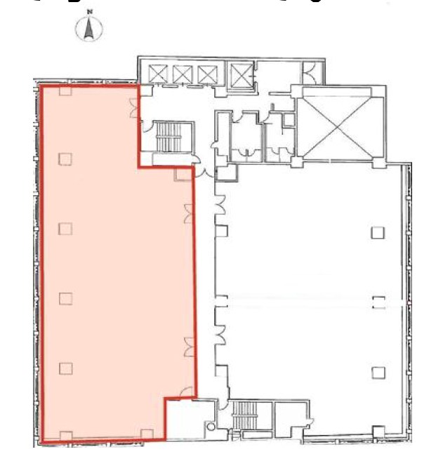
- 階数
- 10
- 面積
- 119坪(393.37㎡)
- 賃料
- 応相談
- 礼金
- -
- 管理費
- -
- 預託金
- 12ヵ月
- 償却費
- ー
- 更新料
- ー
- 契約期間
- 定借 5年
- 入居日
- 即日
- 備考
- 駐車場:35000円/台 敷金3ヶ月
- その他
- 心斎橋駅近く!アクセス抜群でおすすめです!
エレベーター3基
給排水不可
来店型店舗相談可能
※賃料等は税別表示です。
物件情報
- 物件名
- 郵政福祉心斎橋ビル
- 住所
- 大阪府大阪市中央区南船場3-11-18
- 竣工
- 1983年11月
- 建物規模
- 鉄骨鉄筋コンクリート造 地上 11階建 地下 2階
- 主要設備
- 個別空調 24時間利用可 機械警備 エレベーター2基以上 駐車場 駅近
- 特徴
- -
物件を見学したい、空室情報など
物件のお問い合わせ
物件のお問い合わせ
0120-661-755 受付時間|平日10:00~19:00
物件ID【41358】をお伝えください
お問い合わせから10分で返信いたしますこの物件を問い合わせる 交通アクセス
- ・ 心斎橋駅 徒歩1分
5秒で簡単資料請求