イーマ(E-ma)物件ID:41219




- 駅近
- EV2機以上
賃貸条件
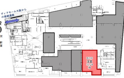
- 階数
- 地下2階
- 面積
- 33.24坪(109.88㎡)
- 賃料
- 997,200円
- 礼金
- -
- 管理費
- -
- 預託金
- 12ヵ月
- 償却費
- ー
- 更新料
- 相談
- 契約期間
- 定借 期間応相談
- 入居日
- 相談
- その他
- ホバリングボード設置
セキュリティーカード
※賃料等は税別表示です。
物件情報
- 物件名
- イーマ(E-ma)
- 住所
- 大阪府大阪市北区梅田1-12-6
- 竣工
- 2002年4月
- 建物規模
- 鉄骨鉄筋コンクリート造 地上 14階建 地下3階
- 主要設備
- エレベーター2基以上 有人警備 機械警備 駅近 新耐震
- 特徴
- -
物件を見学したい、空室情報など
物件のお問い合わせ
物件のお問い合わせ
0120-661-755 受付時間|平日10:00~19:00
物件ID【41219】をお伝えください
お問い合わせから10分で返信いたしますこの物件を問い合わせる 交通アクセス
- ・ 東梅田駅 徒歩1分
- ・ 梅田駅 徒歩2分
イーマ(E-ma) 募集中の区画
階数 | 坪数 | 賃料 | 管理費 | 坪単価 | 預託金 | 入居日 |
---|---|---|---|---|---|---|
地下1階 | 18.86坪 | 565,800円 | - | 30,000円 | 12ヵ月 | 相談 |
1階 | 59.62坪 | 2,682,900円 | - | 45,000円 | 12ヵ月 | 相談 |
5階 | 28.02坪 | 840,600円 | - | 30,000円 | 12ヵ月 | 相談 |
6階 | 27.6坪 | 828,000円 | - | 30,000円 | 12ヵ月 | 相談 |
5秒で簡単資料請求