MF桜橋2ビル物件ID:41162




















- 駅近
- OAフロア
- 個別空調
- 機械警備
- 男女別トイレ
- 駐車場付
賃貸条件
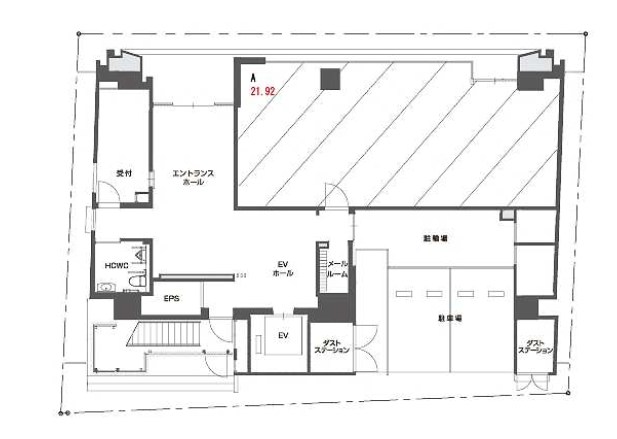
- 階数
- 1階A号室
- 面積
- 21.92坪(72.46㎡)
- 賃料
- 475,664円
- 礼金
- -
- 管理費
- 85,488円
- 預託金
- 2,849,600円
- 償却費
- 満了時 0% 期間内20%
- 更新料
- 相談
- 契約期間
- 定借 5年 (再契約可)
- 入居日
- 相談
- 備考
- 保証会社加入要保証会社未加入の場合:保証金5699200円(坪単価260000円)
- その他
- 国道2号線に面す
大通りに面し、ショールームに最適
外観も綺麗なガラス張り
地震に強い免震構造採用
機械警備・管理人常駐のダブル警備
給湯
駐輪場あり
駐車場あり(平面)
外国籍の個人契約可(国内在住及び印鑑証明要)
事務仕様での引渡、店舗利用での相談可
給排水可
音・臭気を伴う業種不可
※賃料等は税別表示です。
物件情報
- 物件名
- MF桜橋2ビル
- 住所
- 大阪府大阪市北区曾根崎新地2-6-5
- 竣工
- 2015年2月
- 建物規模
- 鉄筋コンクリート造 地上11階建
- 主要設備
- 男女別トイレ 個別空調 有人警備 機械警備 エレベーター 24時間利用可 OAフロア 駐車場 新耐震 駅近
- 特徴
- -
物件を見学したい、空室情報など
物件のお問い合わせ
物件のお問い合わせ
0120-661-755 受付時間|平日10:00~19:00
物件ID【41162】をお伝えください
お問い合わせから10分で返信いたしますこの物件を問い合わせる 交通アクセス
- ・ 北新地駅 徒歩4分
- ・ 梅田駅 徒歩6分
- ・ 大阪駅 徒歩7分
MF桜橋2ビル 募集中の区画
階数 | 坪数 | 賃料 | 管理費 | 坪単価 | 預託金 | 入居日 |
---|---|---|---|---|---|---|
2階ABCD号室 | 50.29坪 | 754,350円 | 191,102円 | 18,800円 | 4,651,825円 | 相談 |
11階CD号室 | 24.17坪 | 386,720円 | 91,846円 | 19,700円 | 2,356,575円 | 相談 |
5秒で簡単資料請求