北浜NEXU BUILD物件ID:41069
























- 自家発電設備あり
- OAフロア
- 機械警備
- 男女別トイレ
- EV2機以上
- 駐車場付
賃貸条件
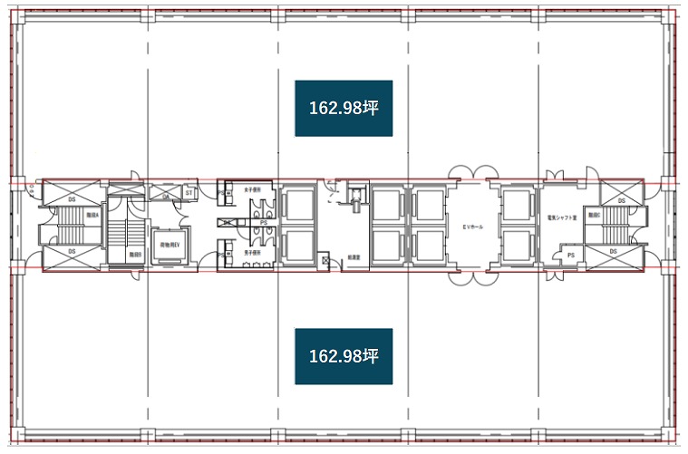
- 階数
- 8階(北側)
- 面積
- 162.98坪(538.76㎡)
- 賃料
- 応相談
- 礼金
- -
- 管理費
- -
- 預託金
- 12ヵ月
- 償却費
- 相談
- 更新料
- 相談
- 契約期間
- 定借 5年
- 入居日
- 相談
- 備考
- 契約形態、年数相談可
※普通借は要相談
地下2階、貸し倉庫あり
※@5000/坪(税別) - その他
- 駐車場複数台提供可能※台数ご相談下さい
1階南側へ2025年6月末、ラウンジ設置完了!
喫煙ルーム あり
1階エントランスに商談スペースあり
地下1階コンビニエンスストア
保安センター:24時間常駐
非常用発電機
※賃料等は税別表示です。
物件情報
- 物件名
- 北浜NEXU BUILD
- 住所
- 大阪府大阪市中央区北浜東4-33
- 竣工
- 1973年1月
- 建物規模
- 鉄骨鉄筋コンクリート造 地下 3階 地上 30階建
- 主要設備
- 有人警備 機械警備 OAフロア 24時間利用可 個別空調 駐車場 セントラル空調
- 特徴
- -
物件を見学したい、空室情報など
物件のお問い合わせ
物件のお問い合わせ
0120-661-755 受付時間|平日10:00~19:00
物件ID【41069】をお伝えください
お問い合わせから10分で返信いたしますこの物件を問い合わせる 交通アクセス
- ・ 北浜駅 徒歩6分
- ・ 天満橋駅 徒歩7分
北浜NEXU BUILD 募集中の区画
階数 | 坪数 | 賃料 | 管理費 | 坪単価 | 預託金 | 入居日 |
---|---|---|---|---|---|---|
4階 | 325.95坪 | 応相談 | - | - | 12ヵ月 | 即日 |
5階 | 325.95坪 | 応相談 | - | - | 12ヵ月 | 即日 |
6階 | 325.95坪 | 応相談 | - | - | 12ヵ月 | 即日 |
9階 | 325.95坪 | 応相談 | - | - | 12ヵ月 | 2026/7/1 |
10階 | 325.95坪 | 応相談 | - | - | 12ヵ月 | 2026/7/1 |
11階 | 325.95坪 | 応相談 | - | - | 12ヵ月 | 2026/7/1 |
12階 | 325.95坪 | 応相談 | - | - | 12ヵ月 | 2026/7/1 |
14階 | 325.95坪 | 応相談 | - | - | 12ヵ月 | 即日 |
5秒で簡単資料請求